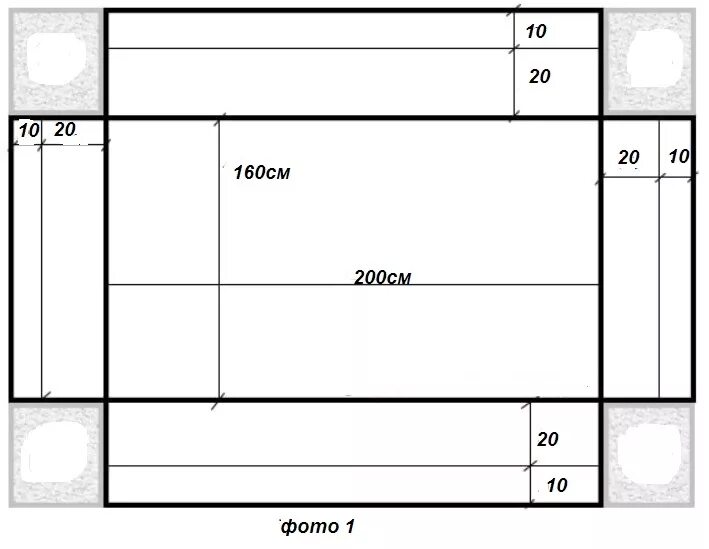
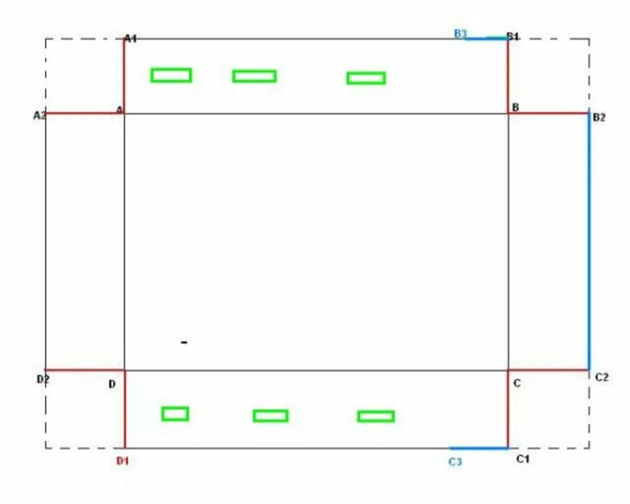
Как сшить простынь на резинке на матрас