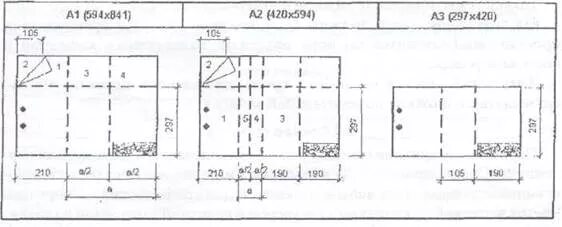
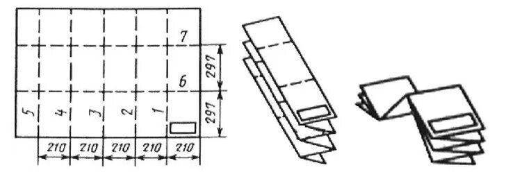
Как сложить лист а3 по госту