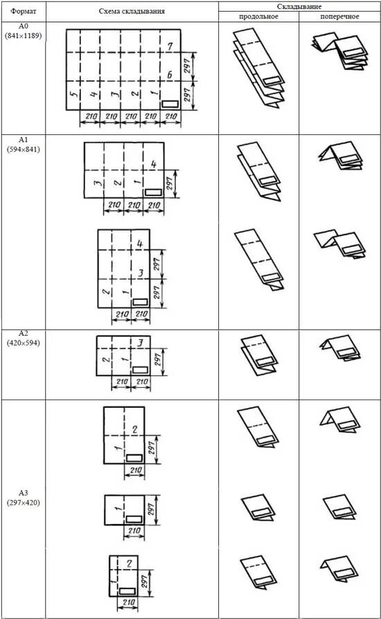
Как сложить лист а1