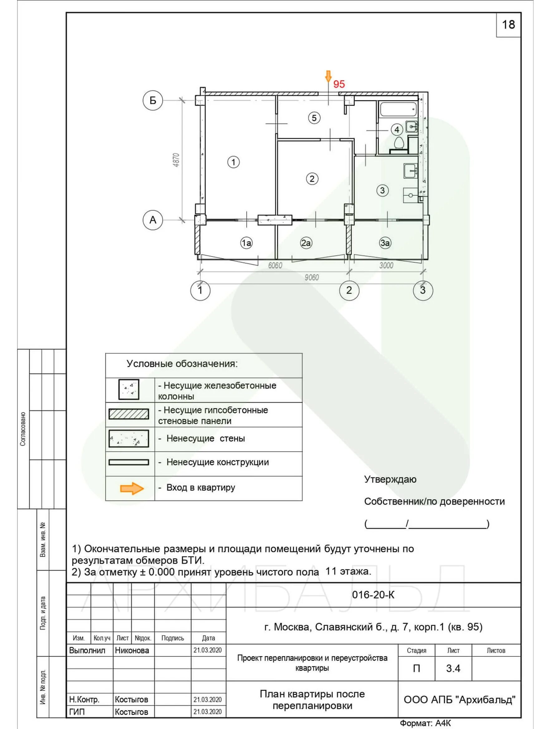
Как сделать законную перепланировку