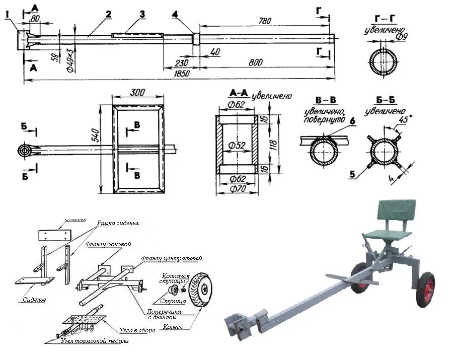
Как сделать адаптер задний