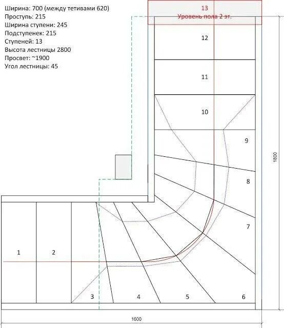
Как рассчитать забежные ступени