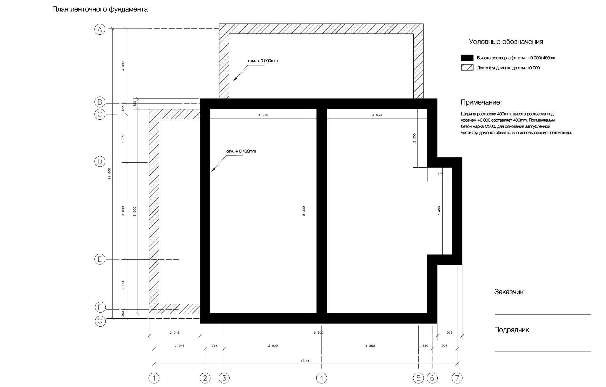
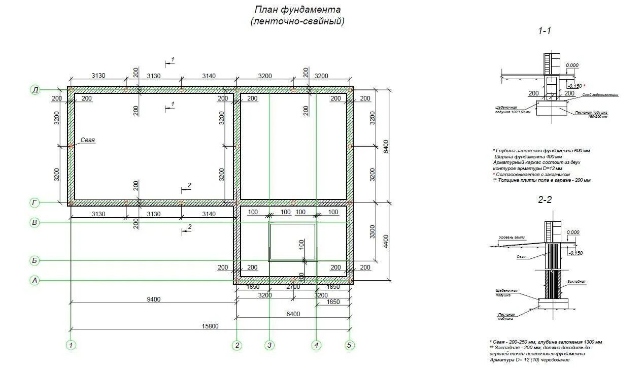
Как рассчитать ленточный фундамент под дом