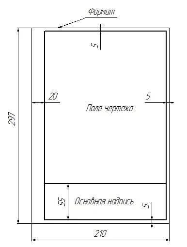
Как располагают лист а4