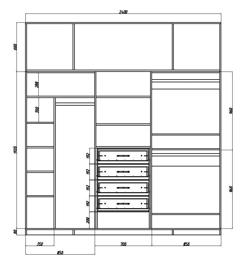
Как распланировать шкаф