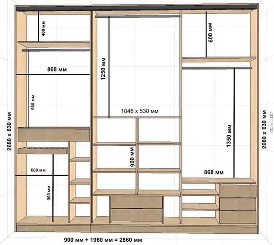
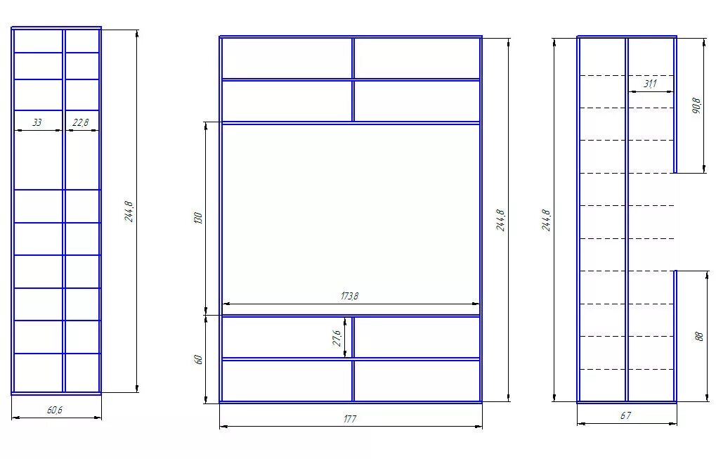
Как распить шкаф