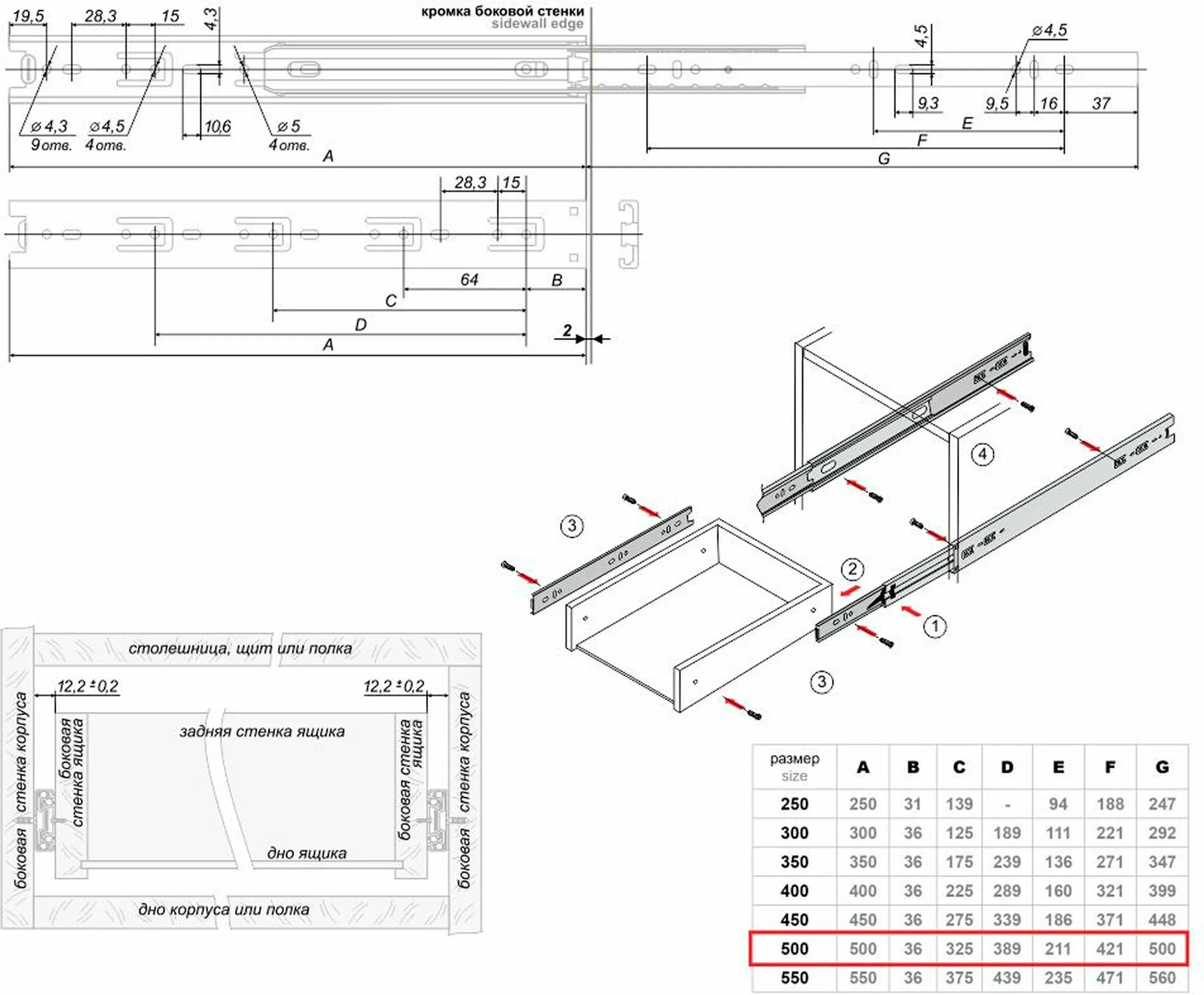
Как прикрутить полозья к выдвижному ящику