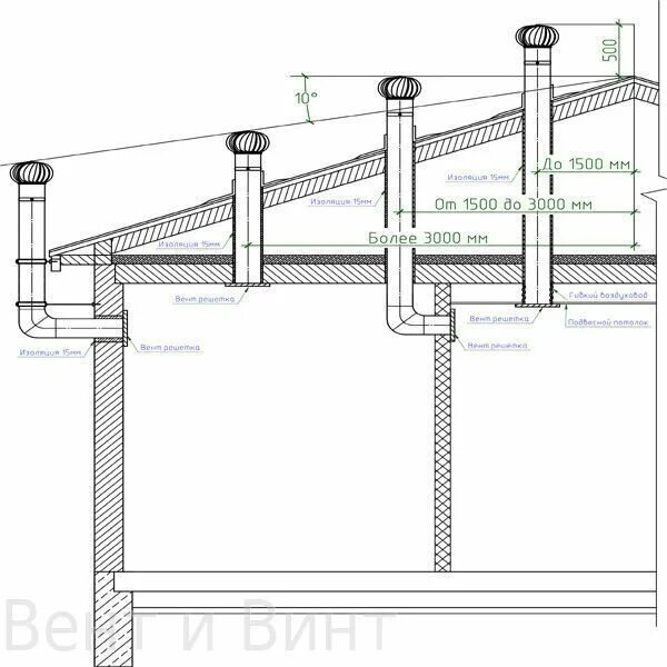
Как правильно установить вытяжную трубу