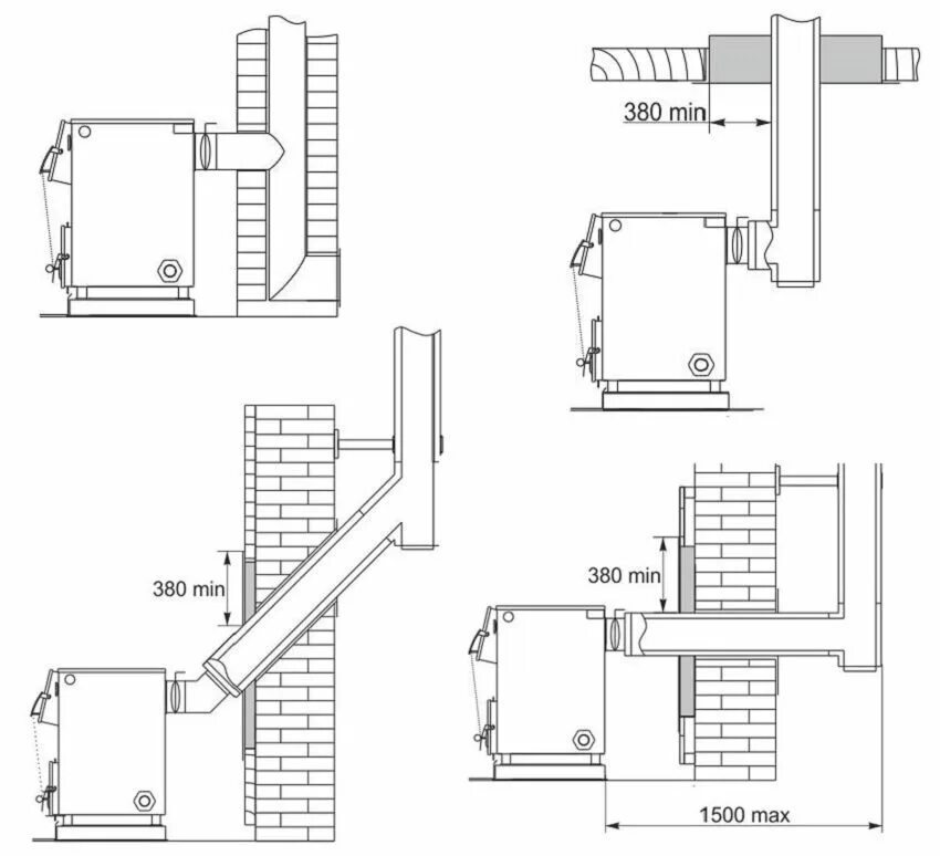
Как правильно сделать дымоход для котла