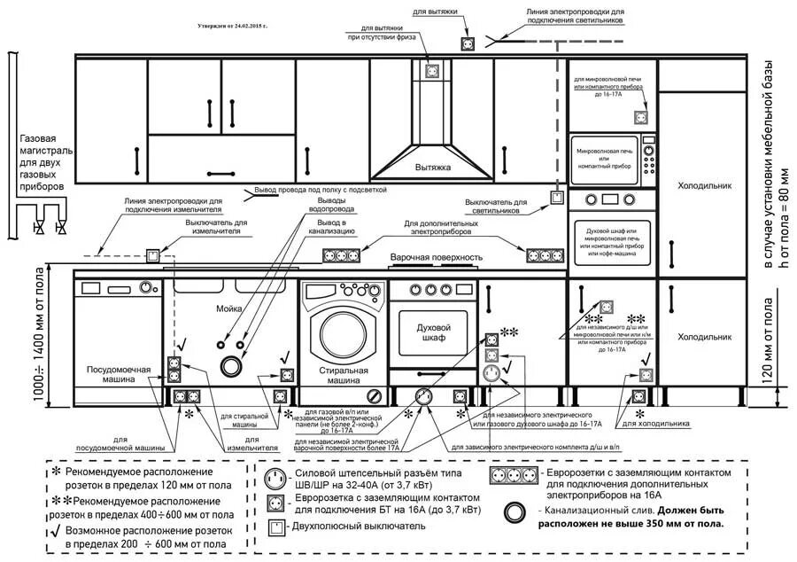
Как правильно распределить розетки