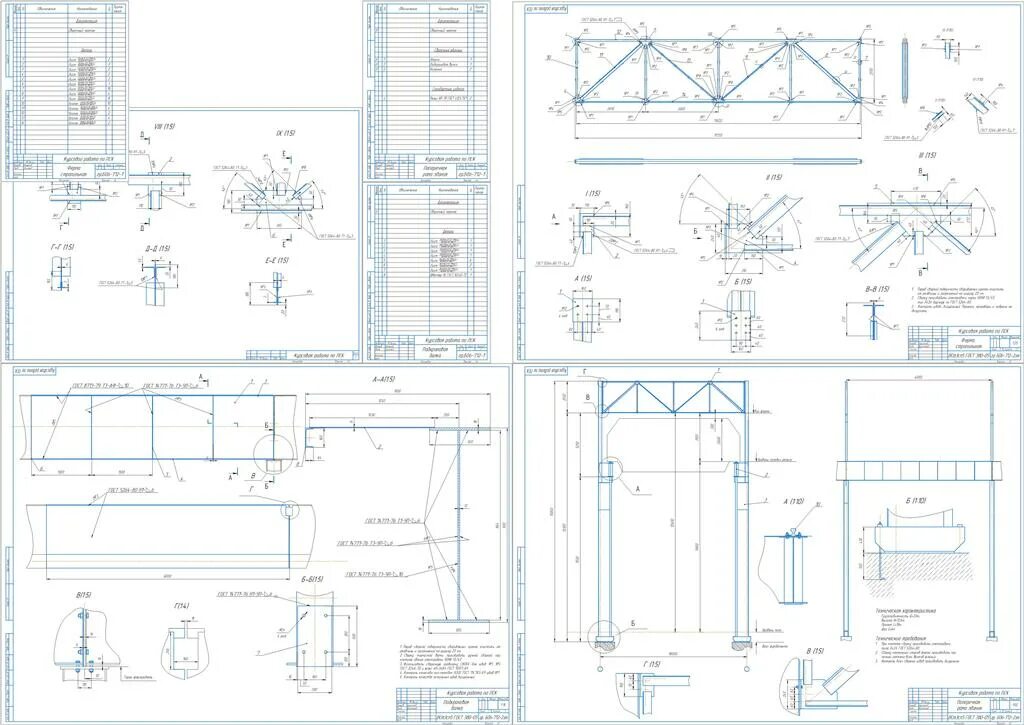
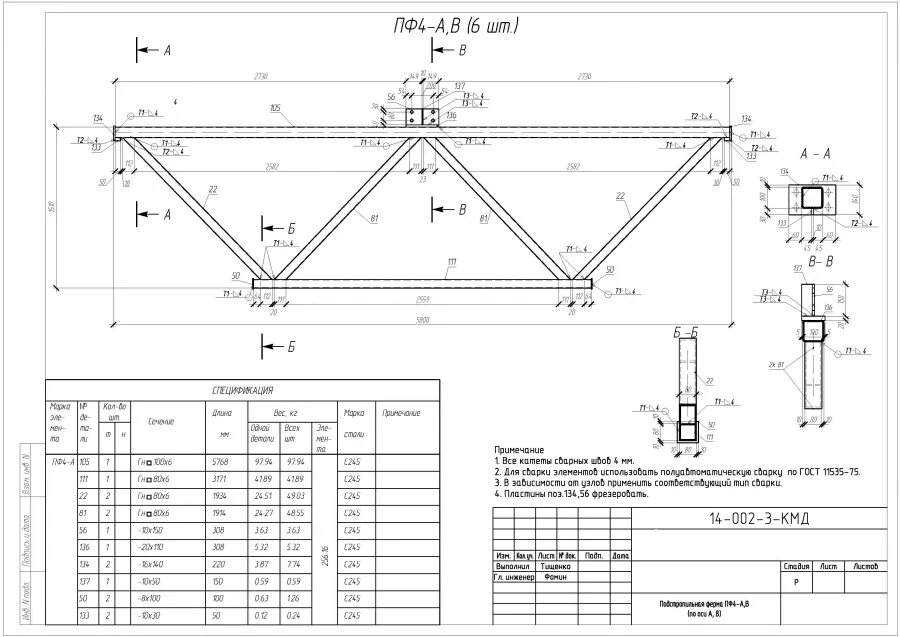
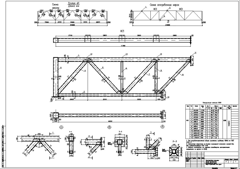
Как правильно читать чертежи металлоконструкций