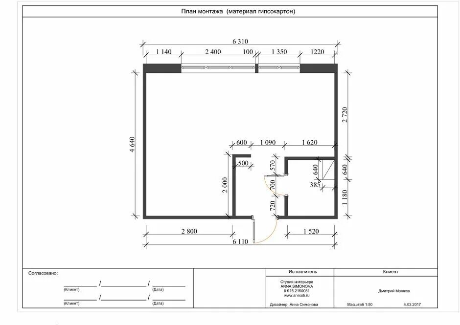
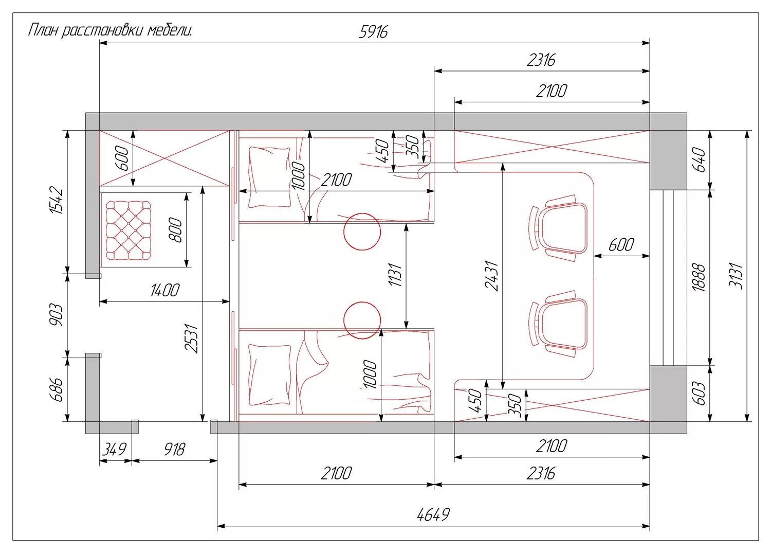
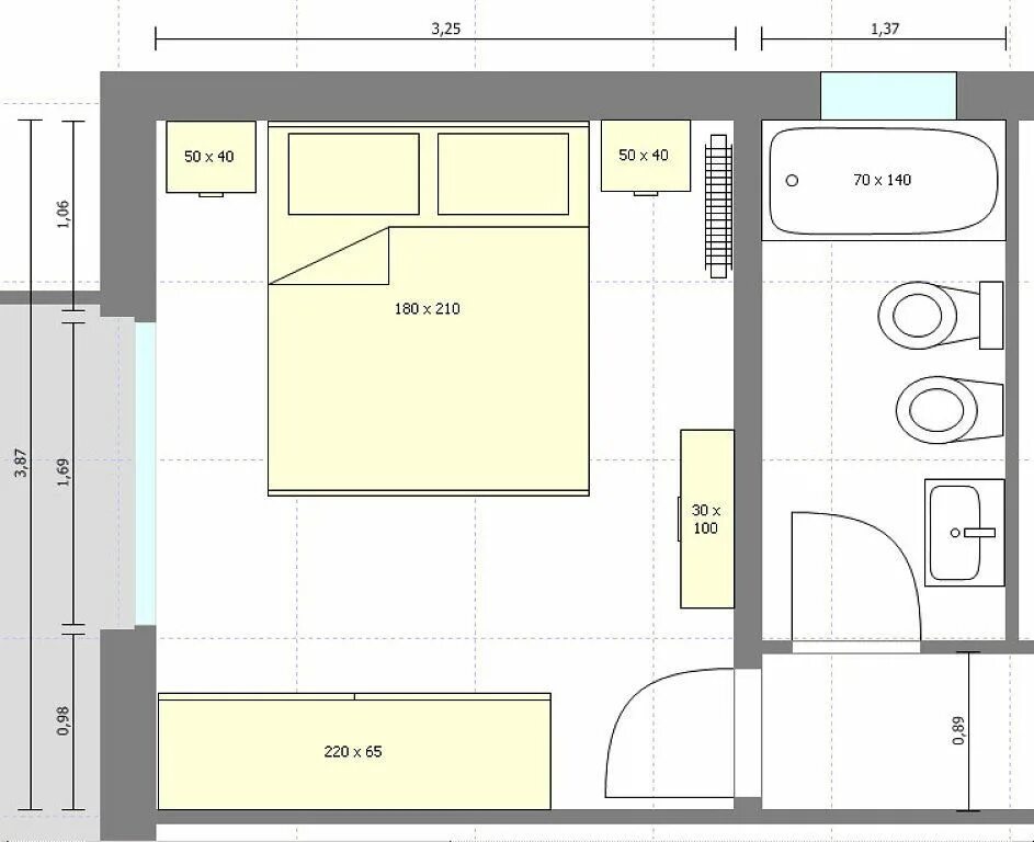
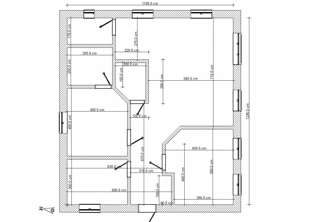
Как подобрать размеры комнат