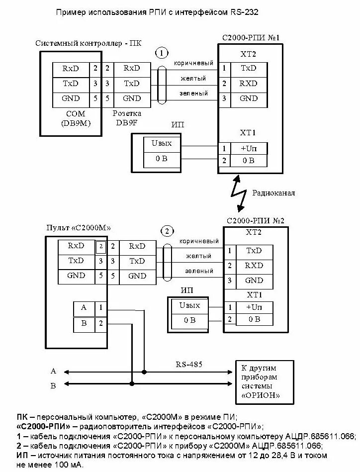
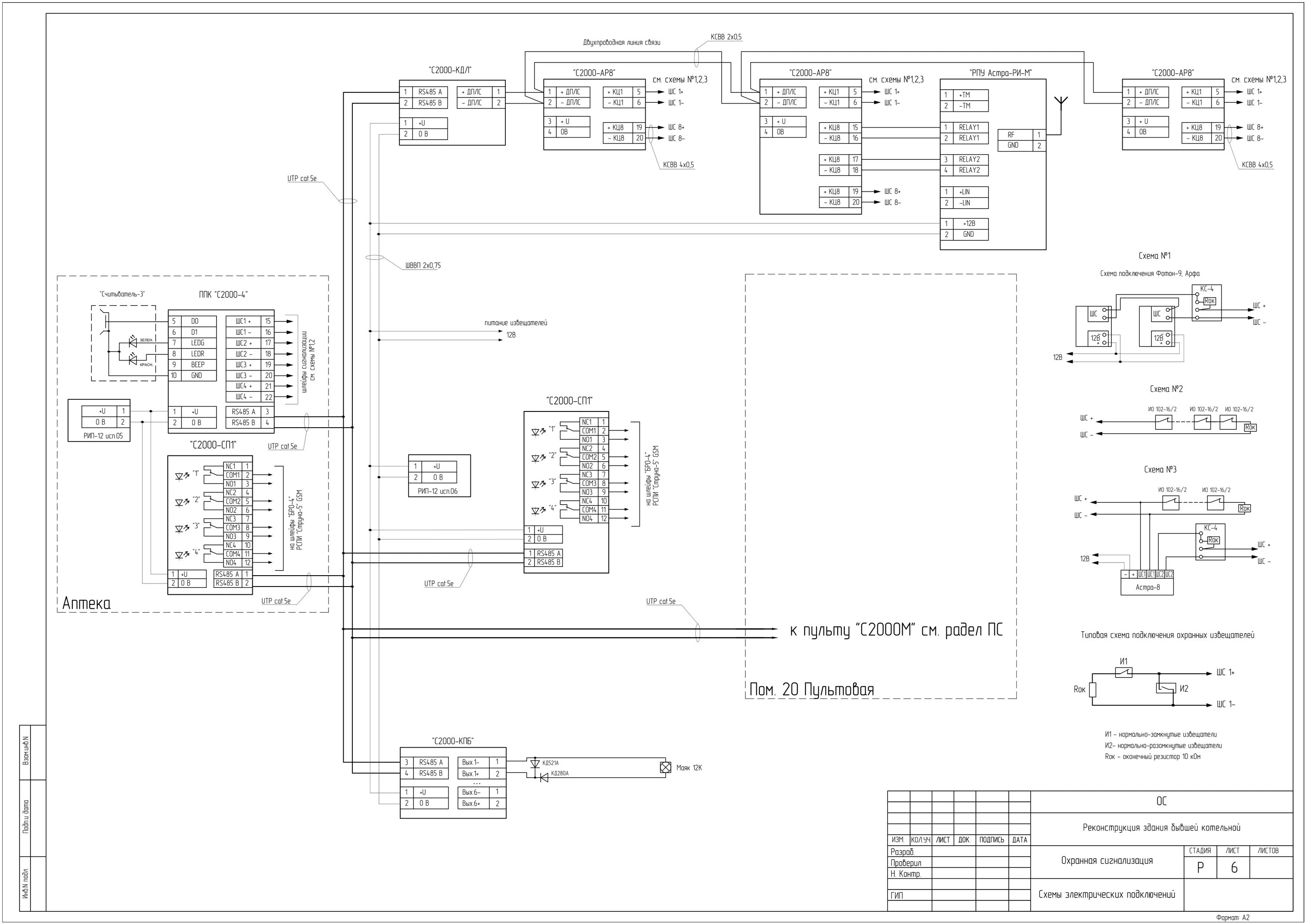
Как подключить кдл