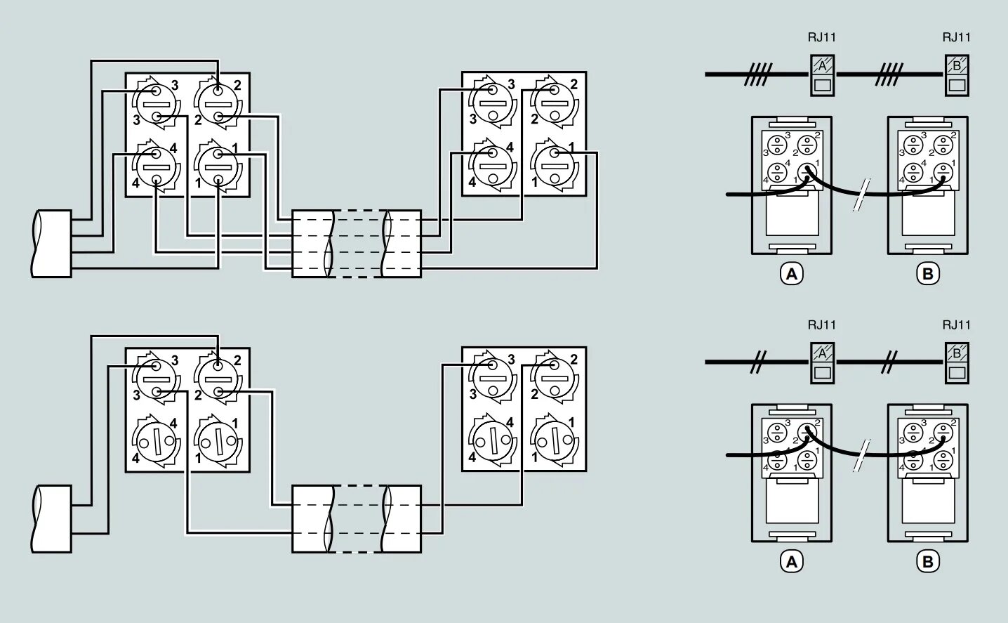
Как подключить интернет розетку легран