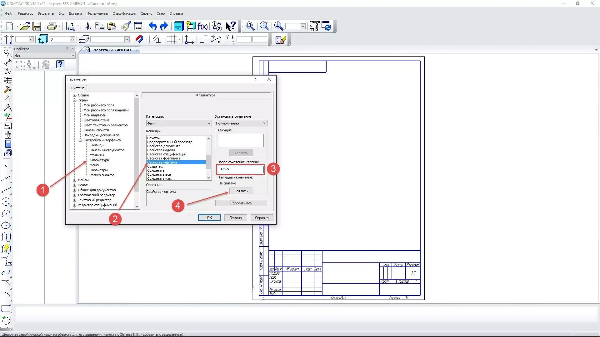
Как переместить координаты в компасе