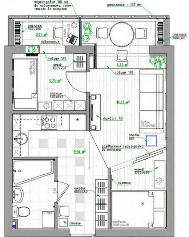
Как переделать однокомнатную квартиру в двухкомнатную