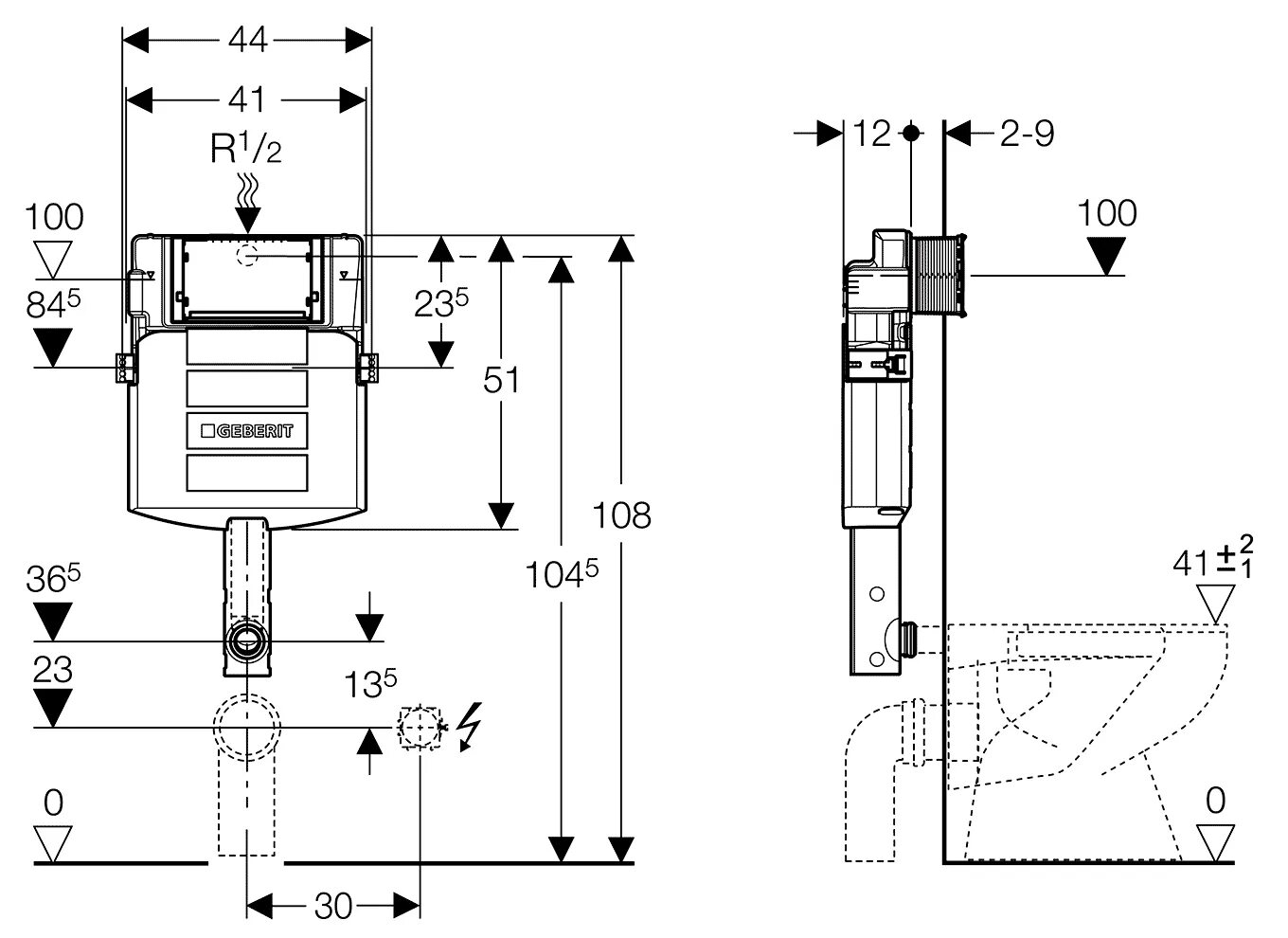
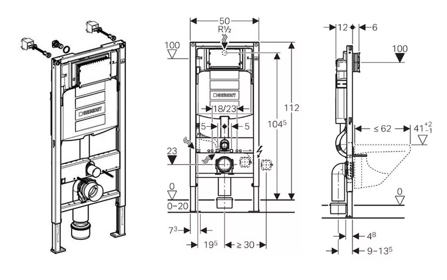
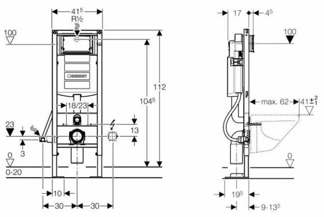
Как отрегулировать инсталляцию унитаза