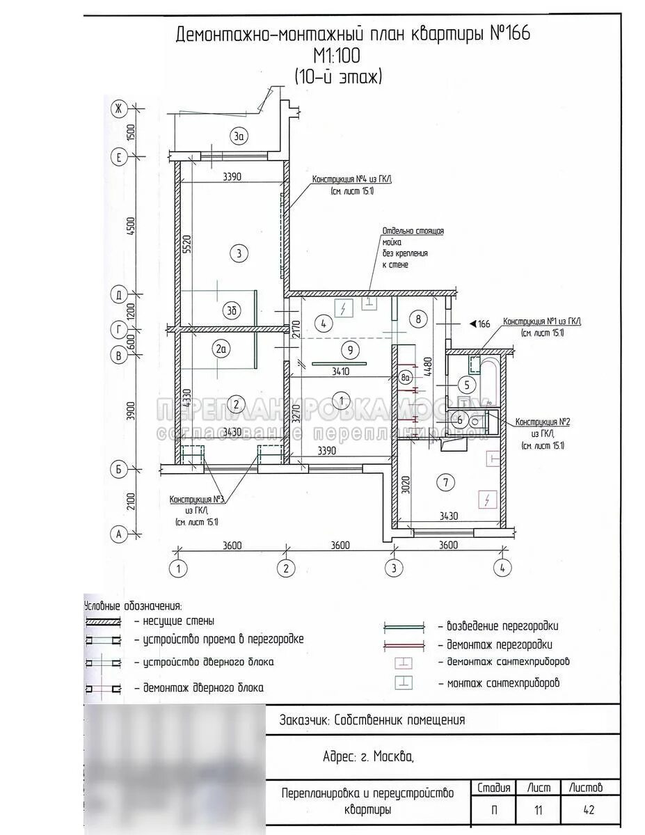
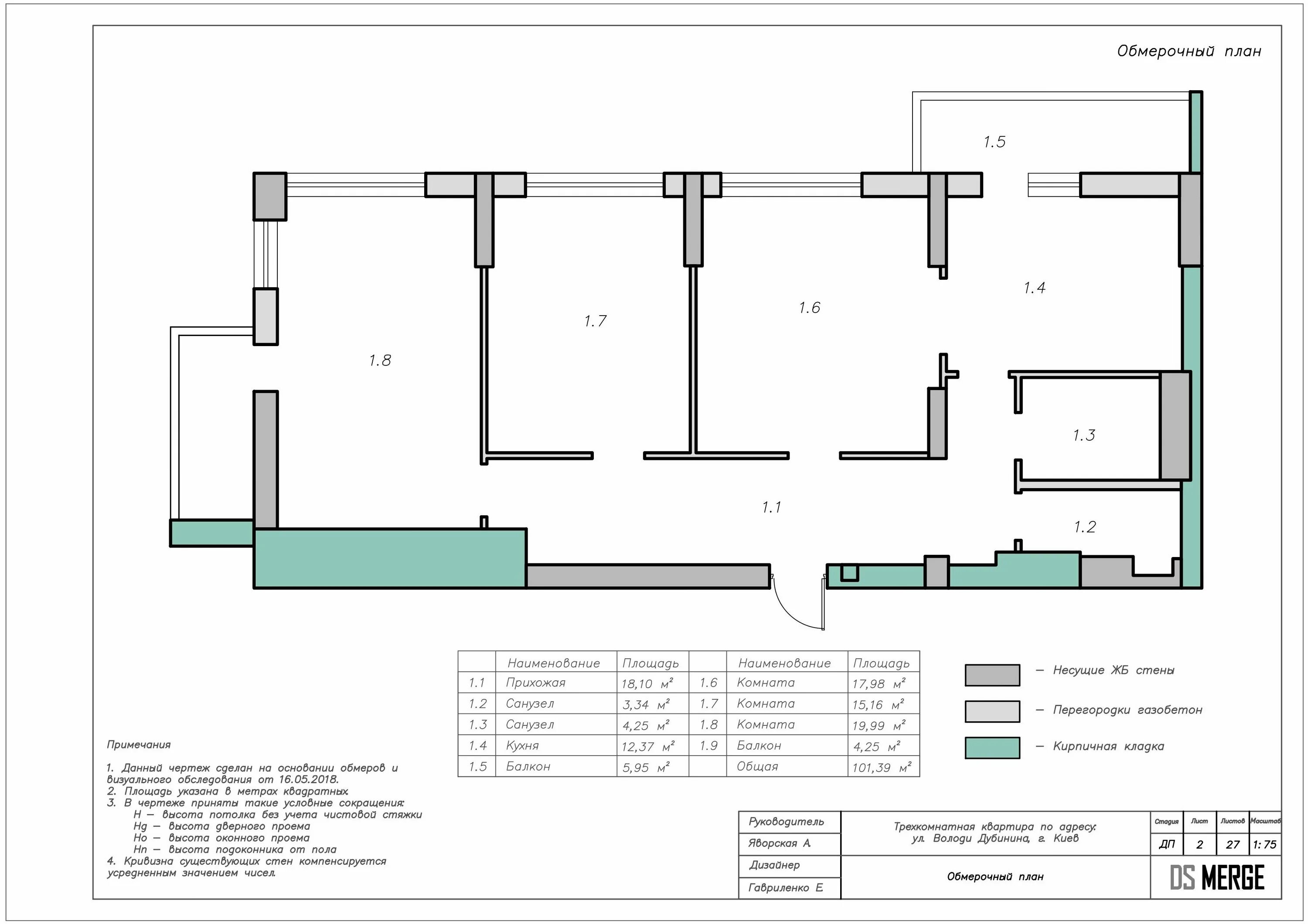
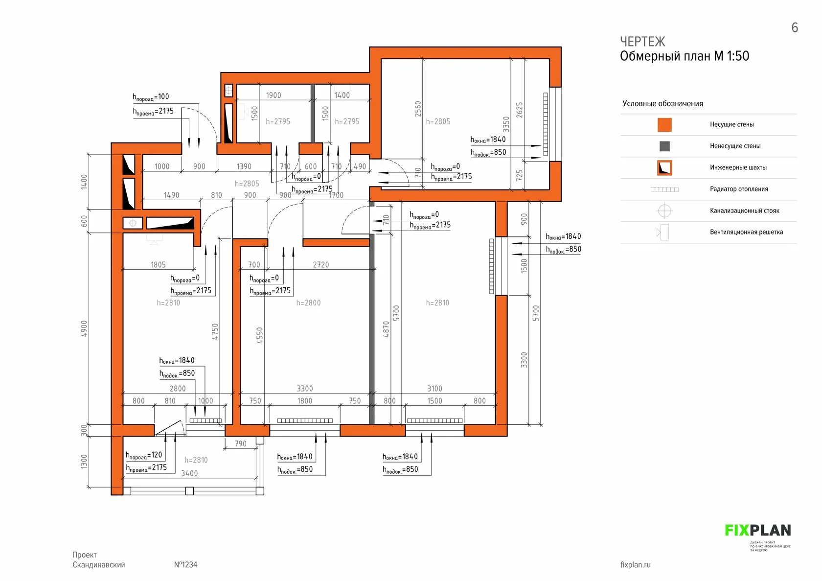
Как обозначаются несущие стены на плане