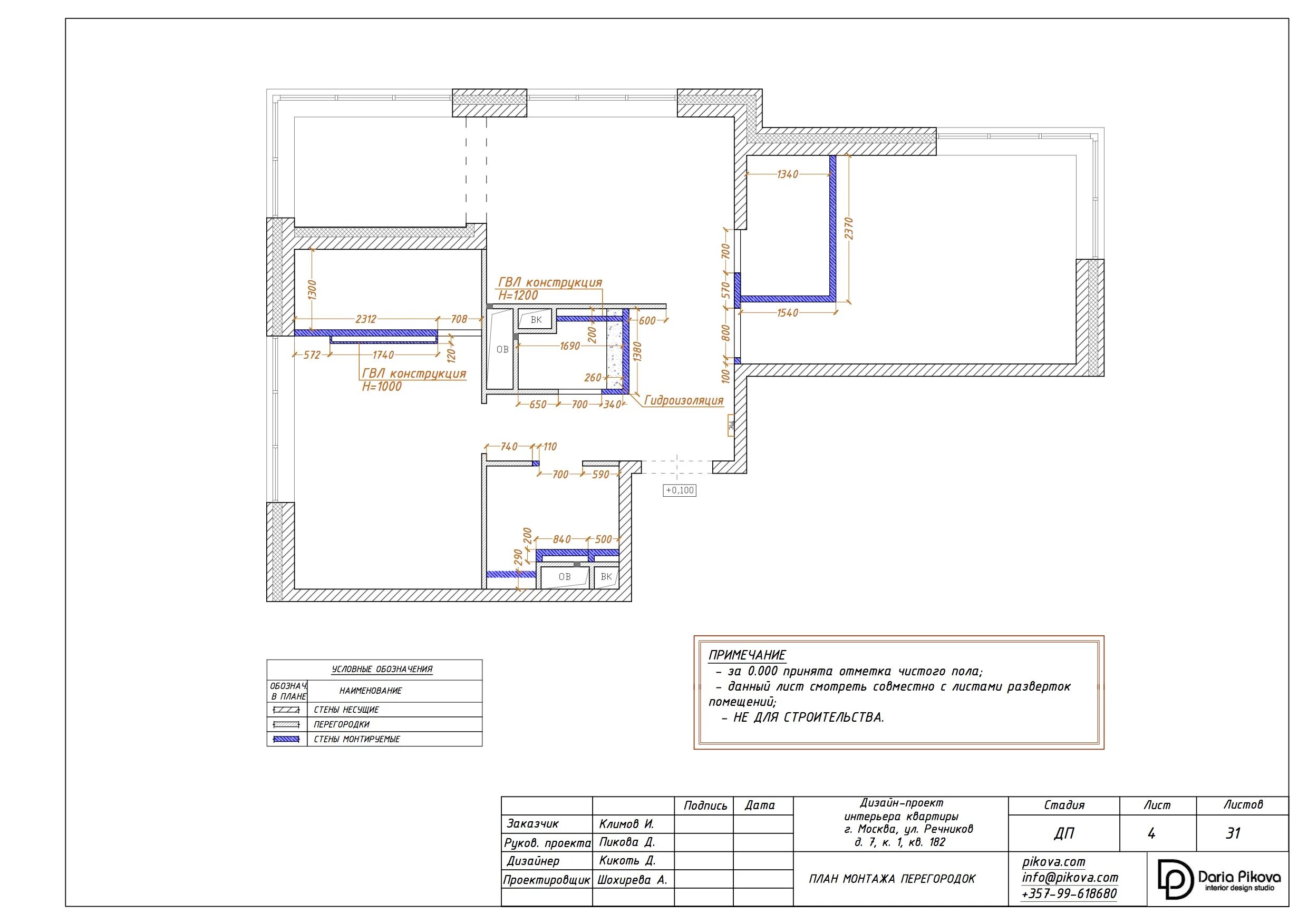
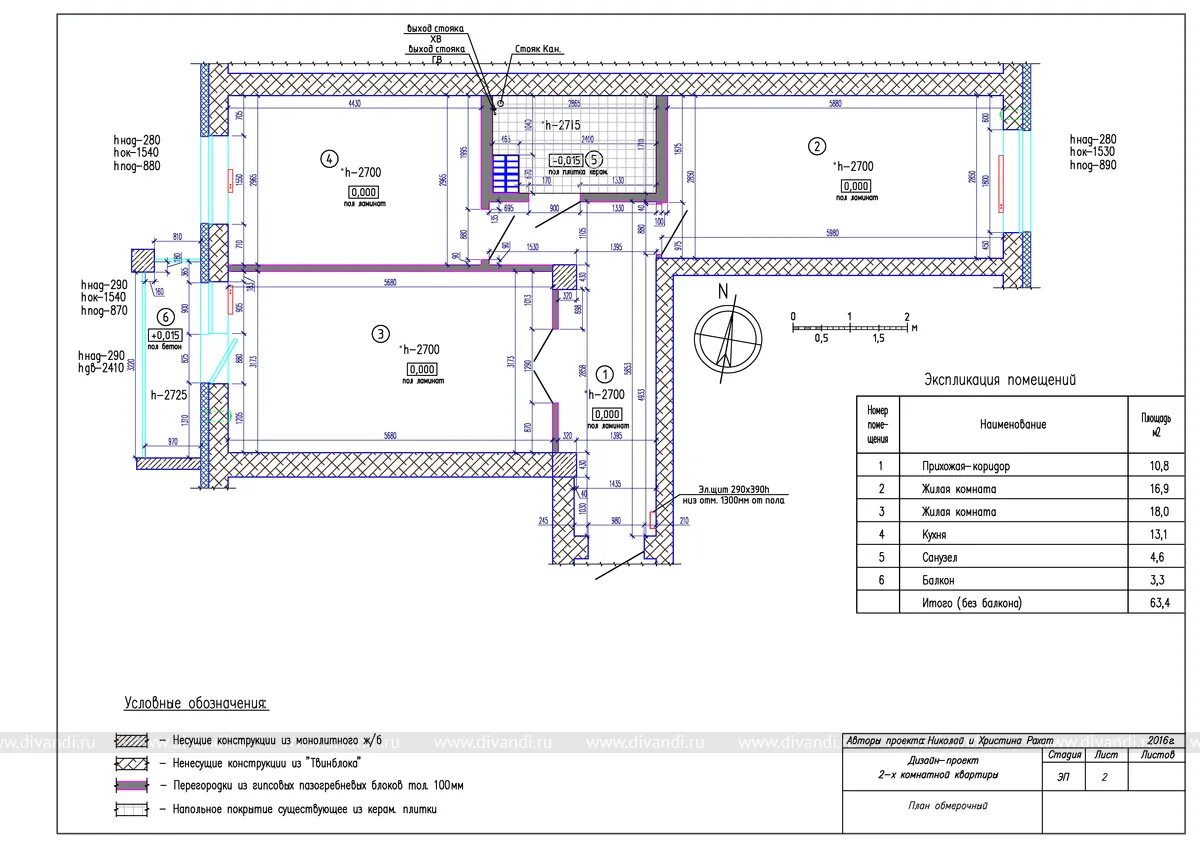
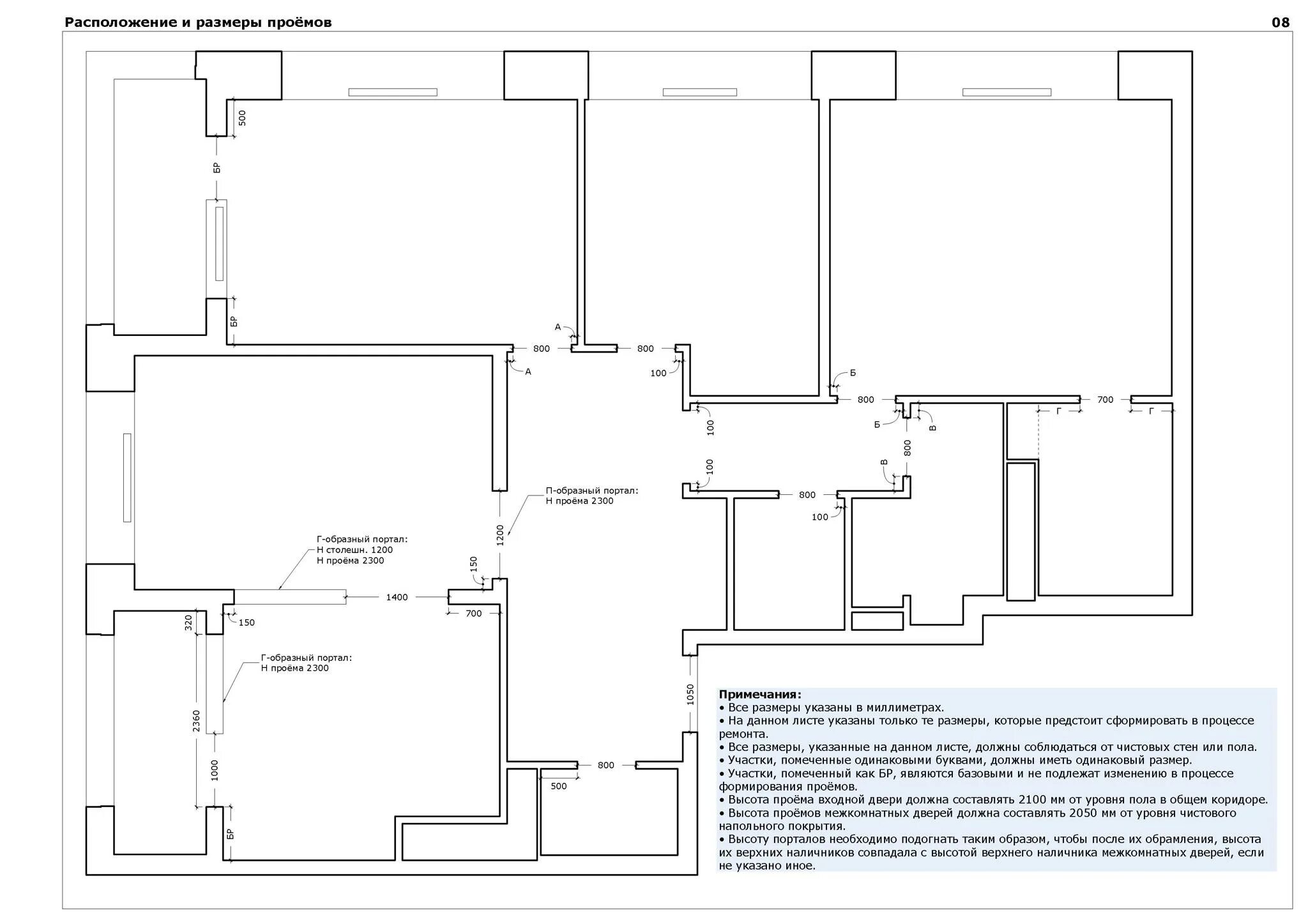
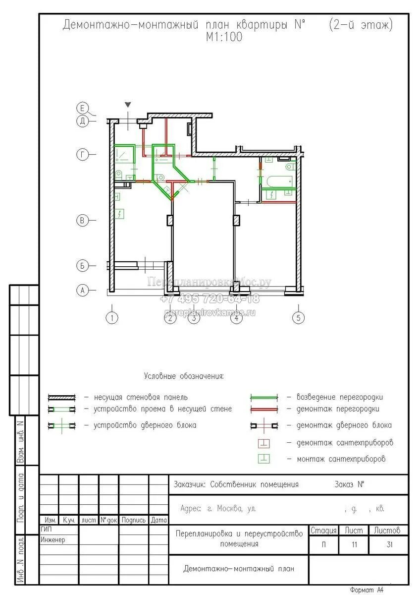
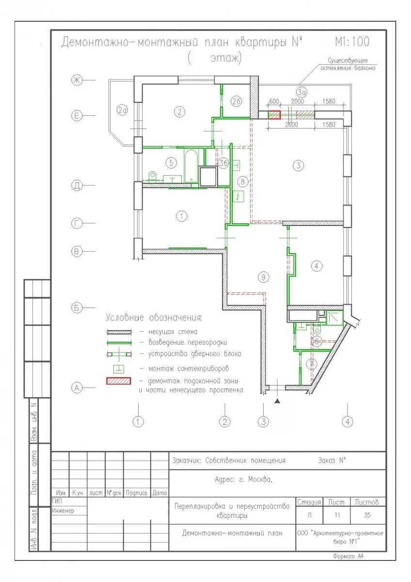
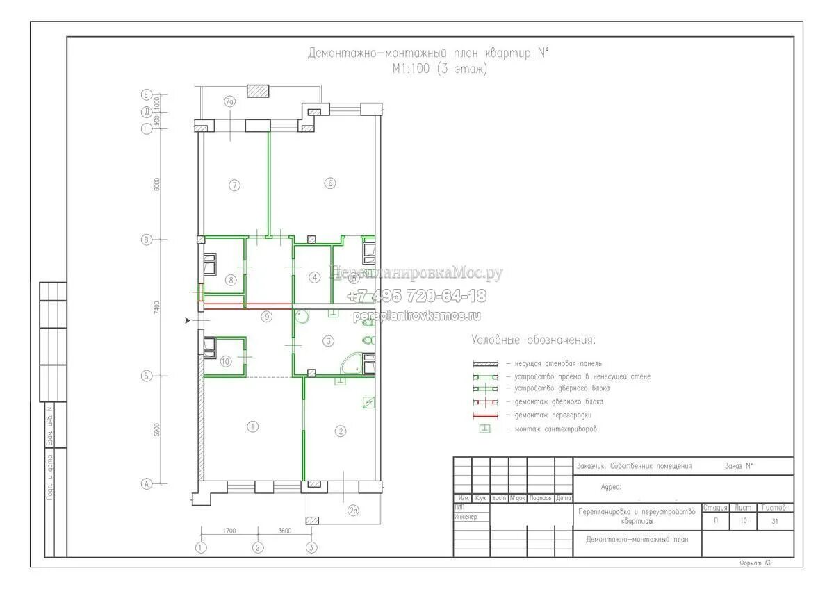
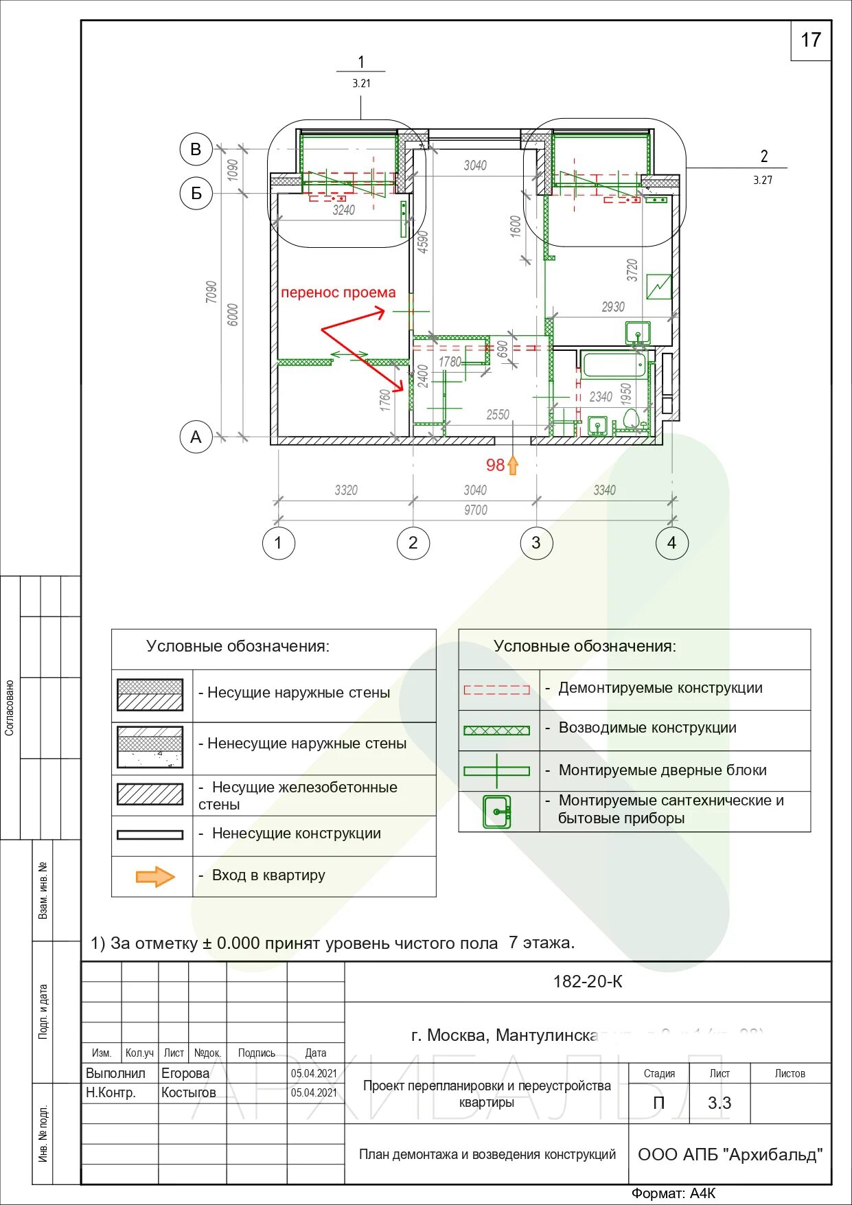
Как на плане квартиры обозначаются несущие стены