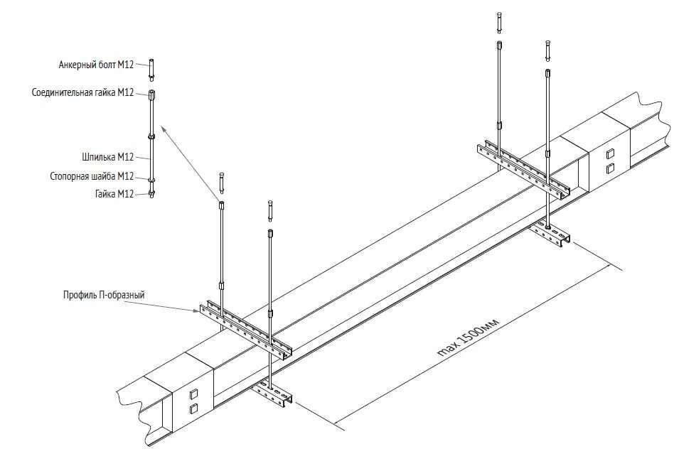
Как крепить лотки