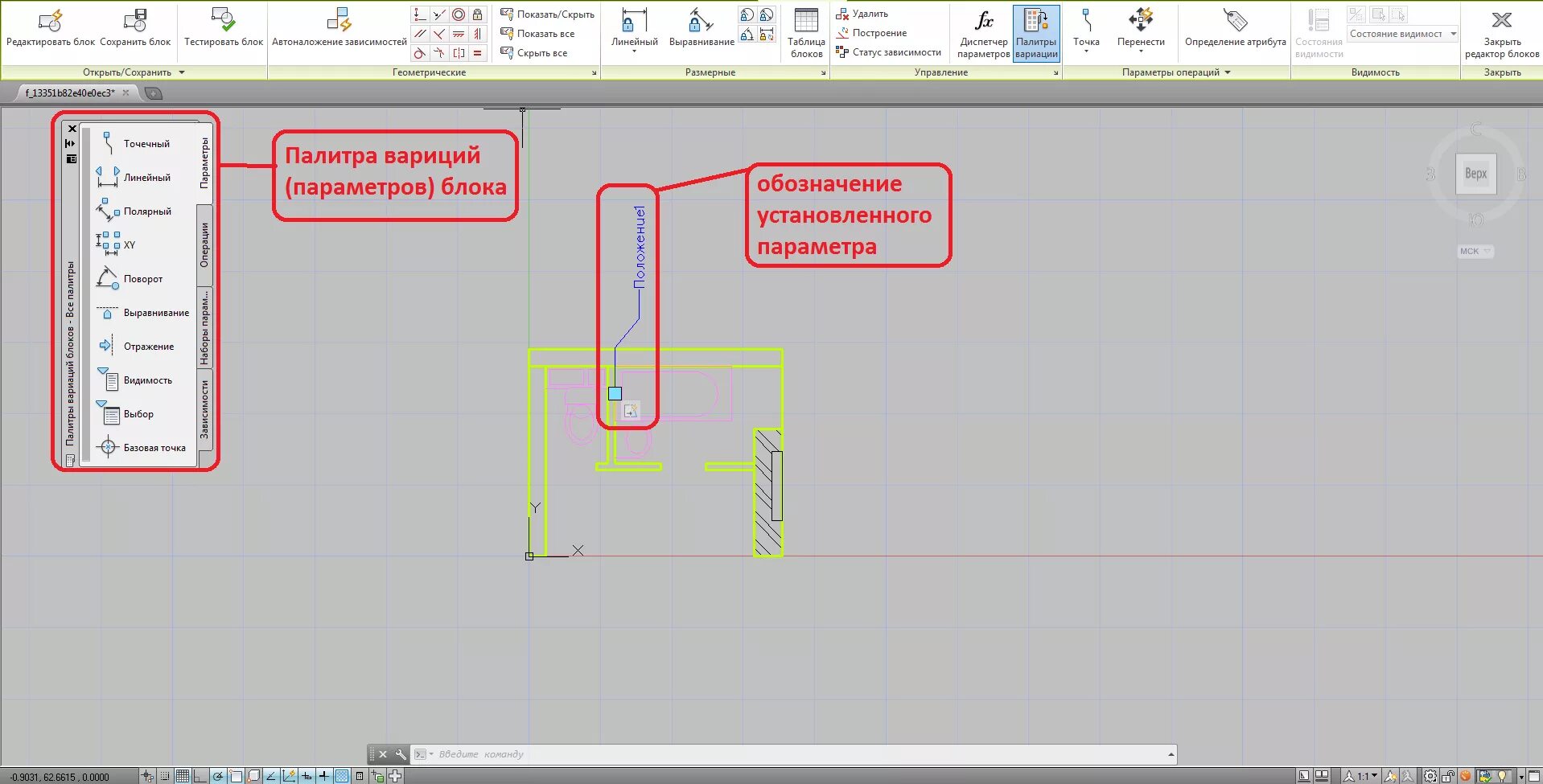
Как изменять блоки в автокаде