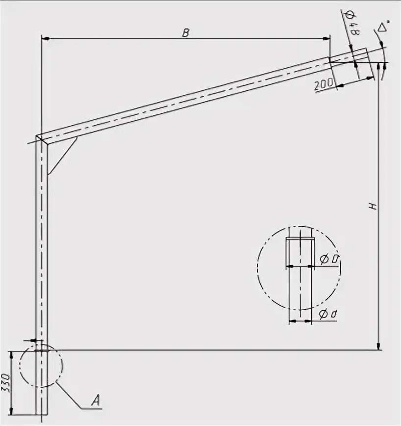
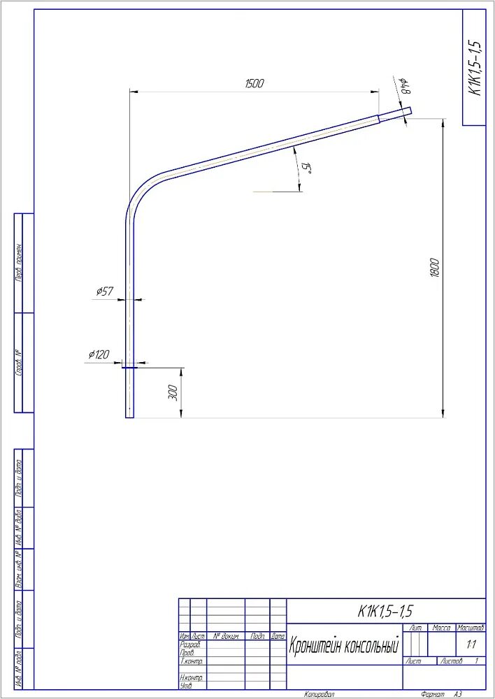
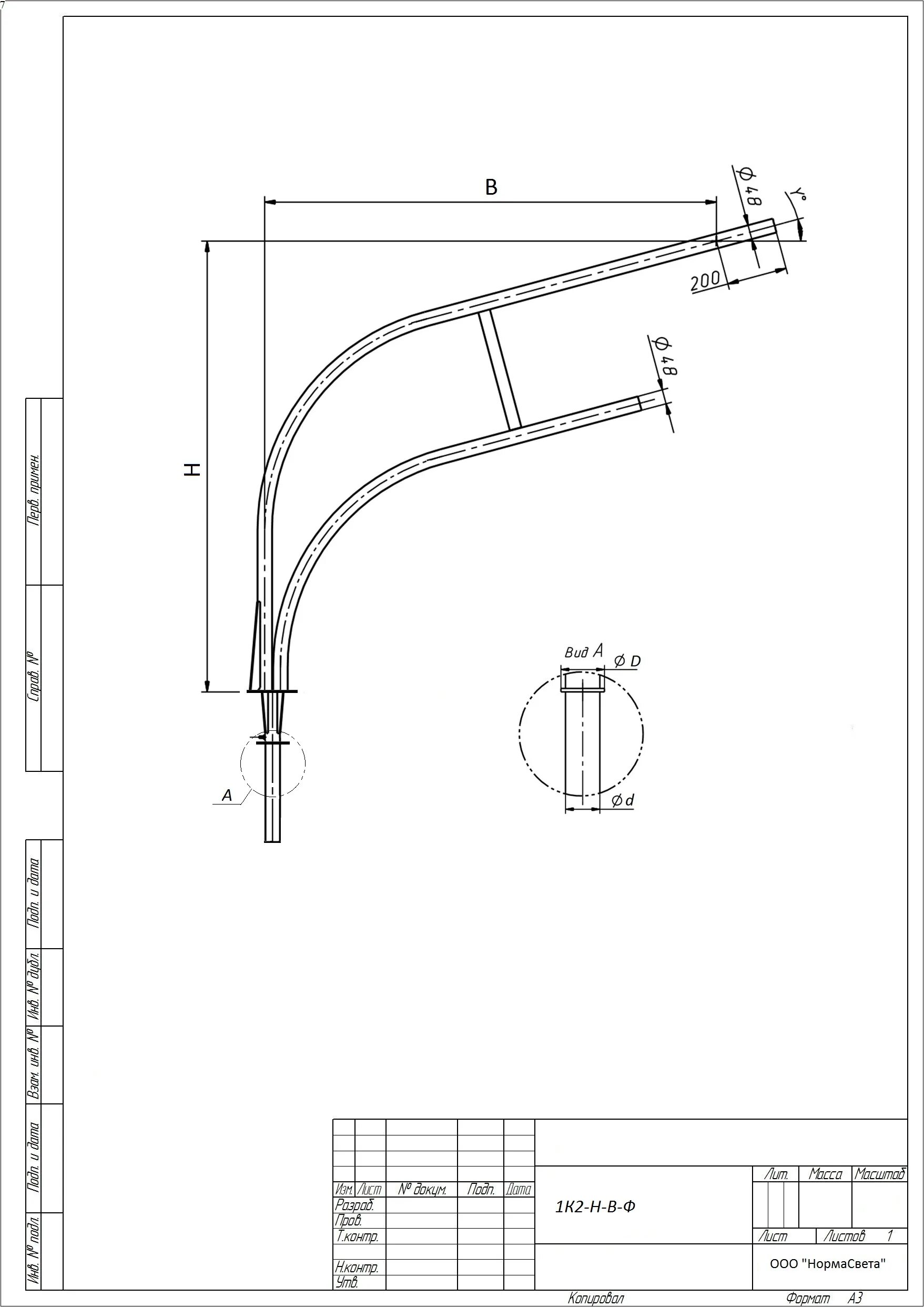
К1 1 5 1 5 ф2