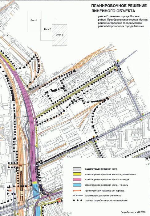
Изменение параметров линейных объектов