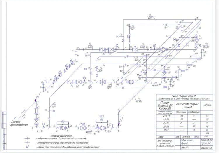
Исполнительную схему трубопровода разрабатывает