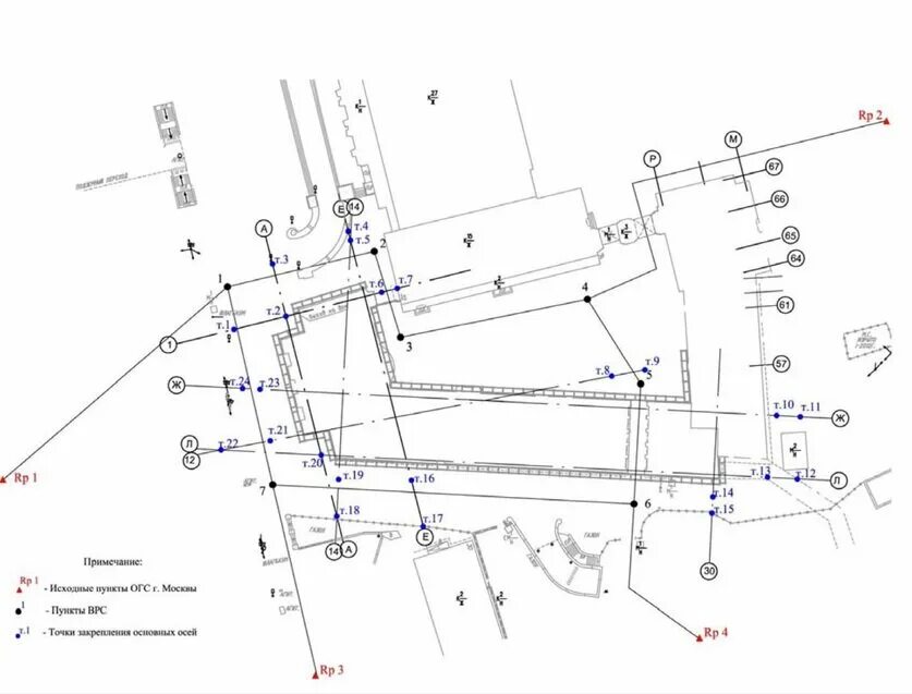
Исполнительная съемка объекта