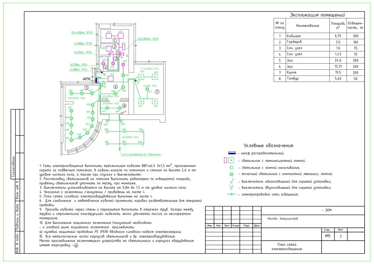
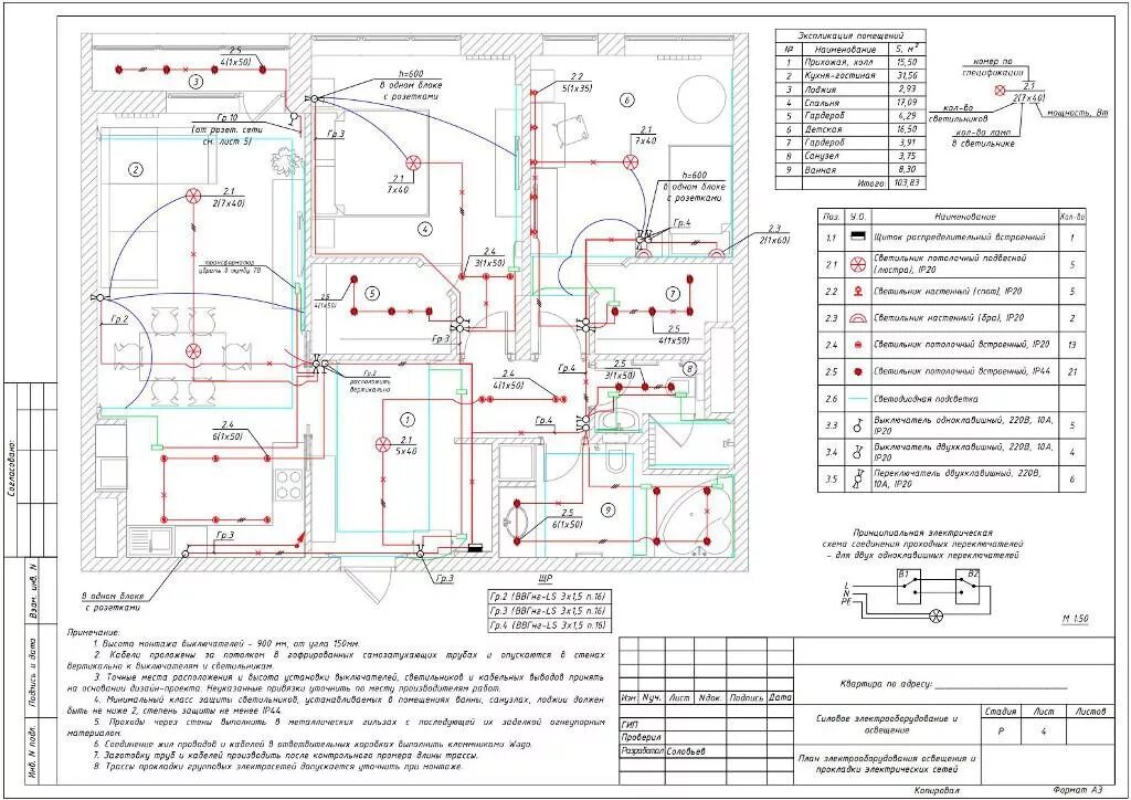
Исполнительная документация освещение