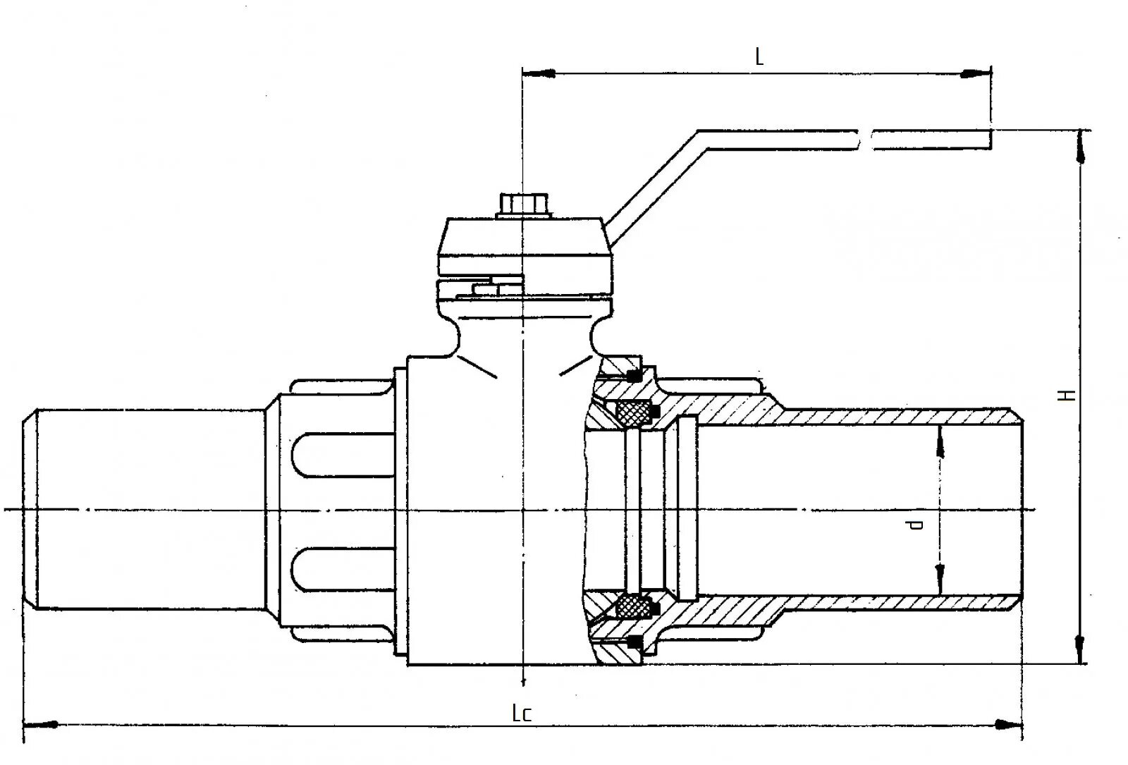
Исполнение под приварку