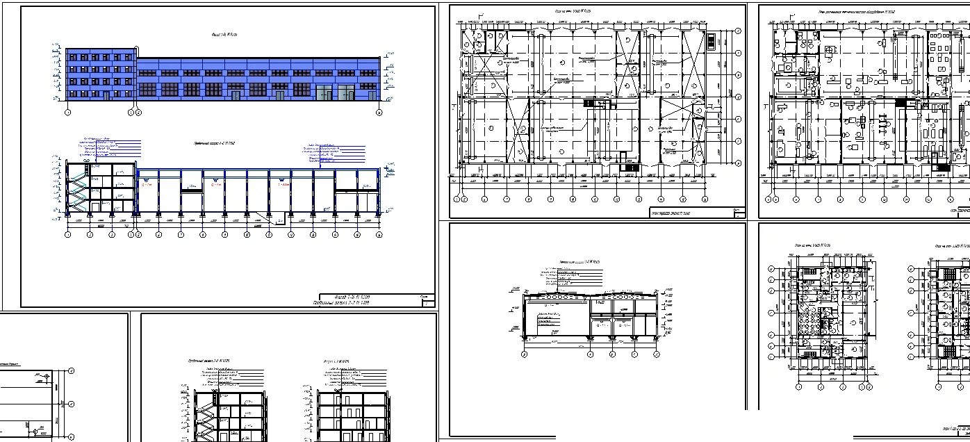
Исходные данные для проектирования здания