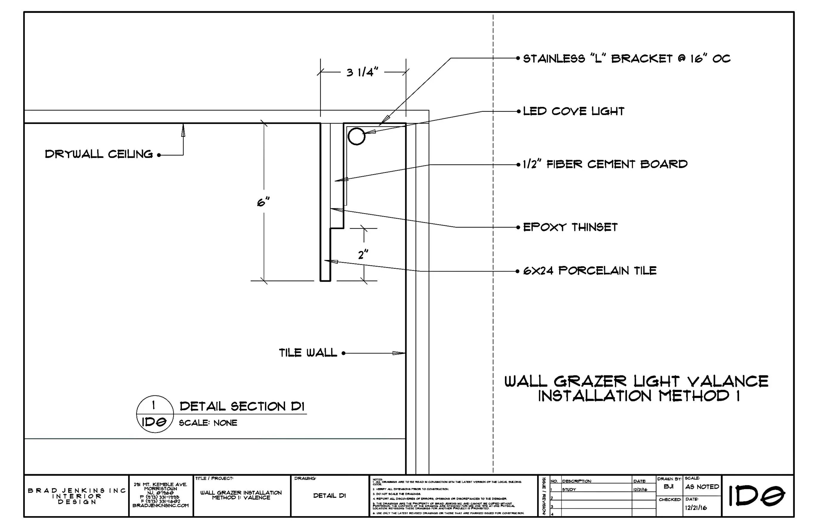
Installation method