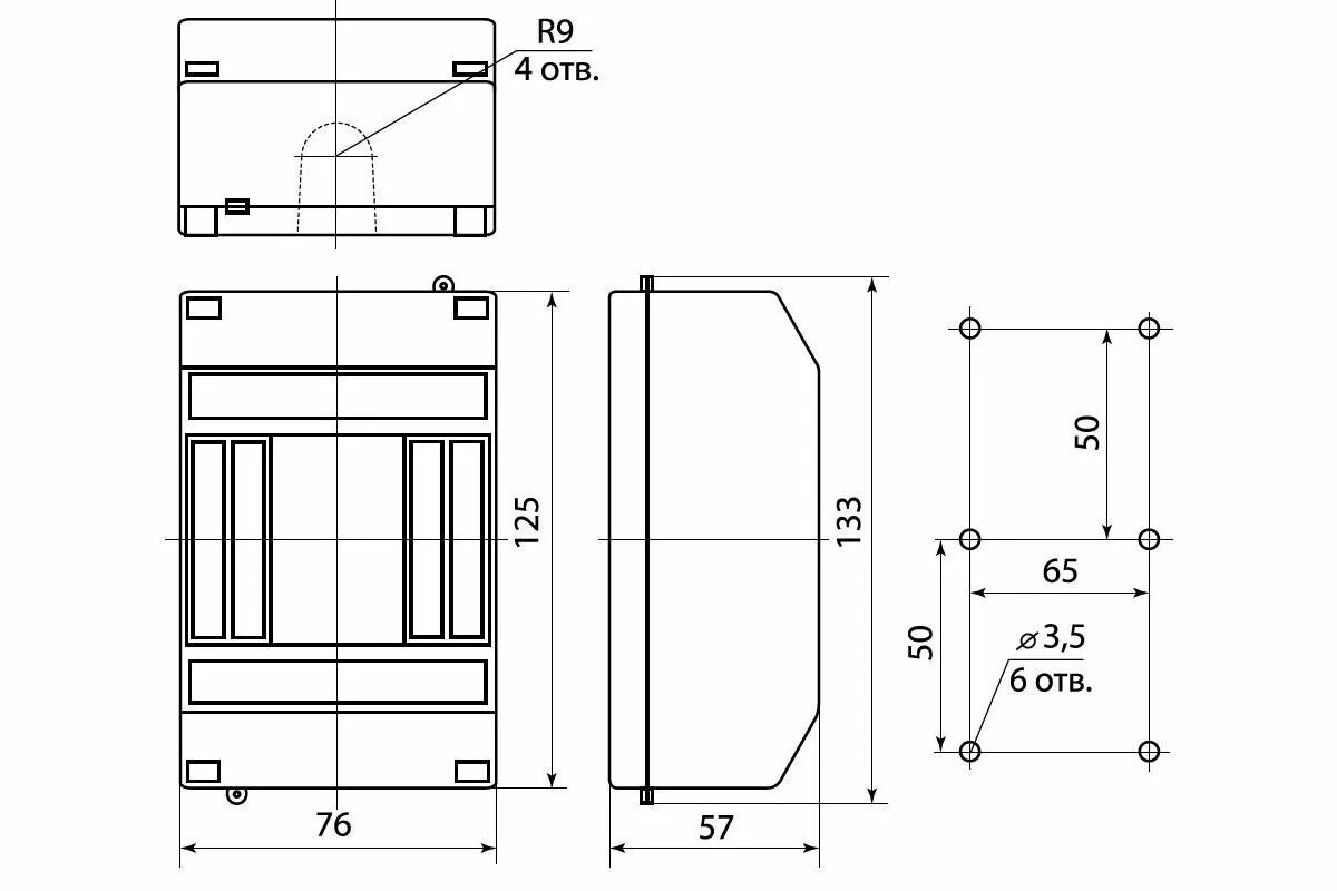
Iek 4 модуля