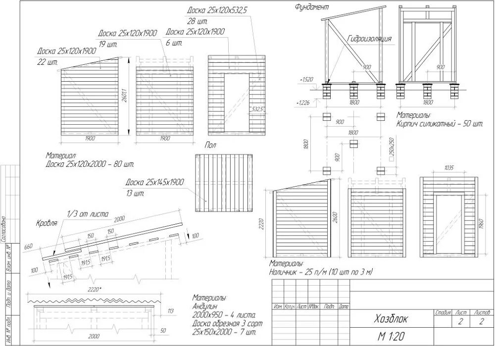
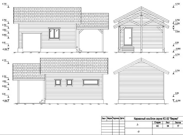
Хозблок для дачи чертежи деревянный