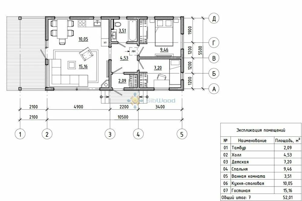
Готовые чертежи каркасного дома