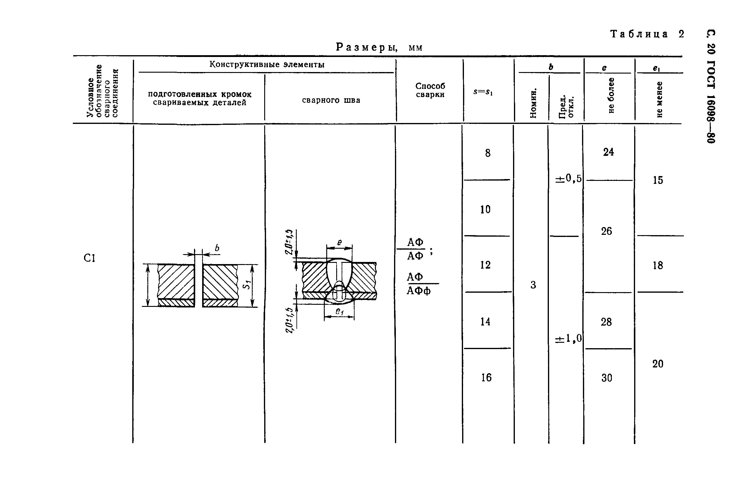
Госты элементов размеры