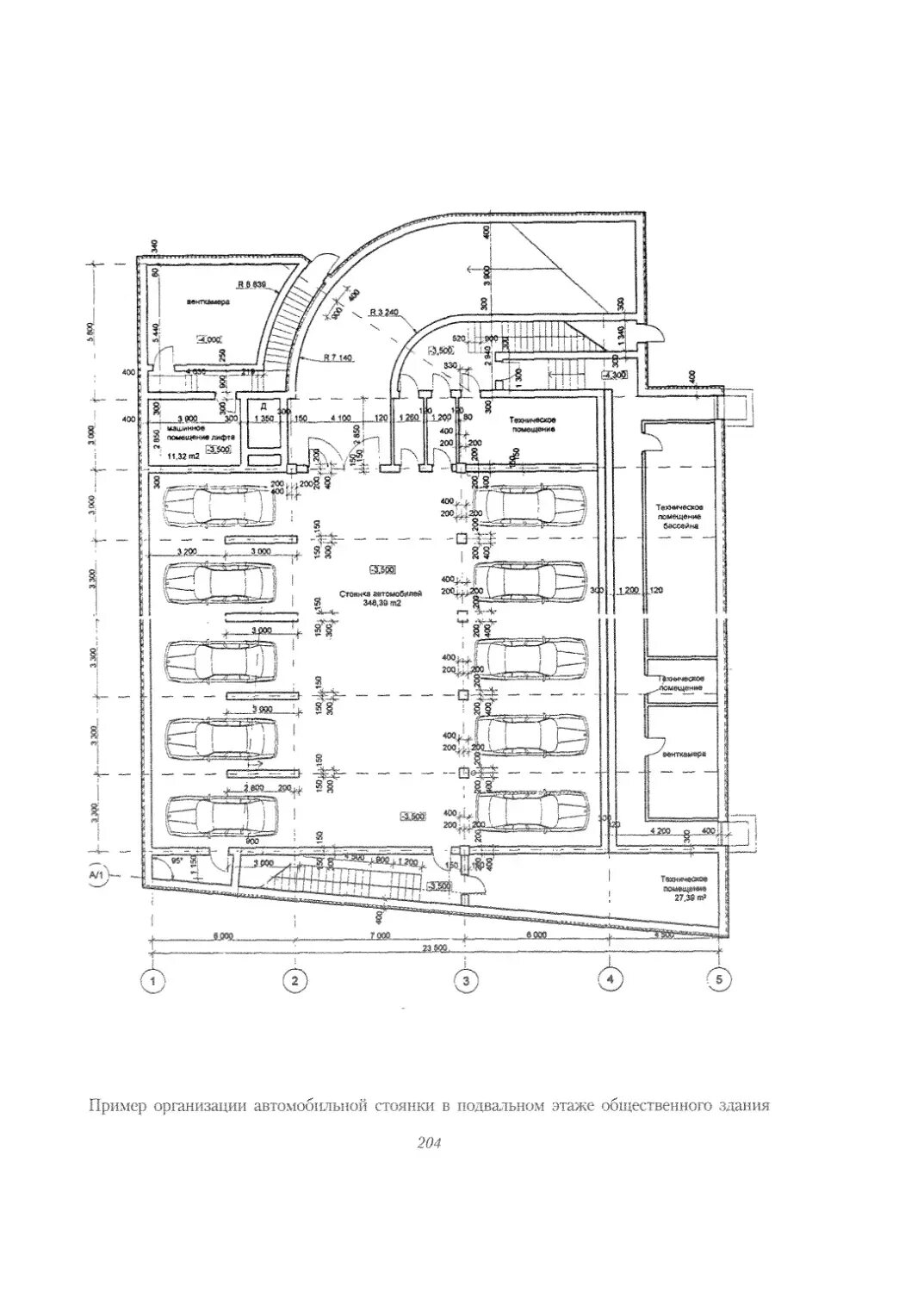
Гельфонд общественные здания