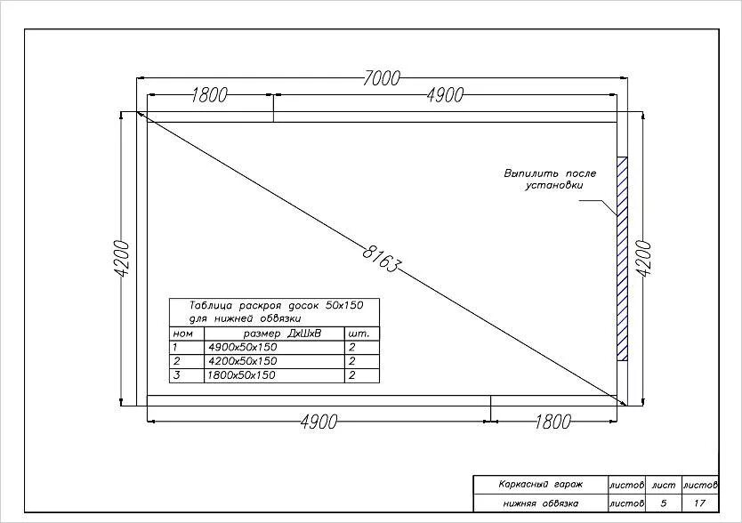
Гараж из металла своими руками чертежи