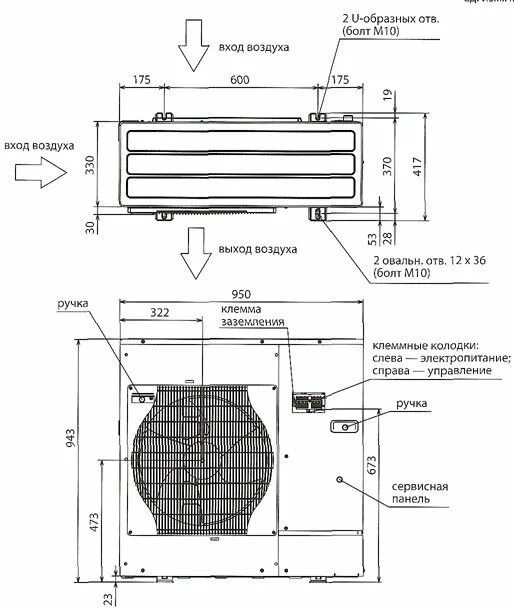
Габаритные размеры кондиционера