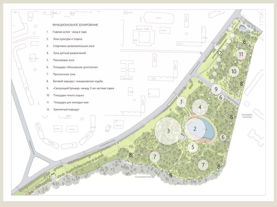
Функциональное зонирование улицы