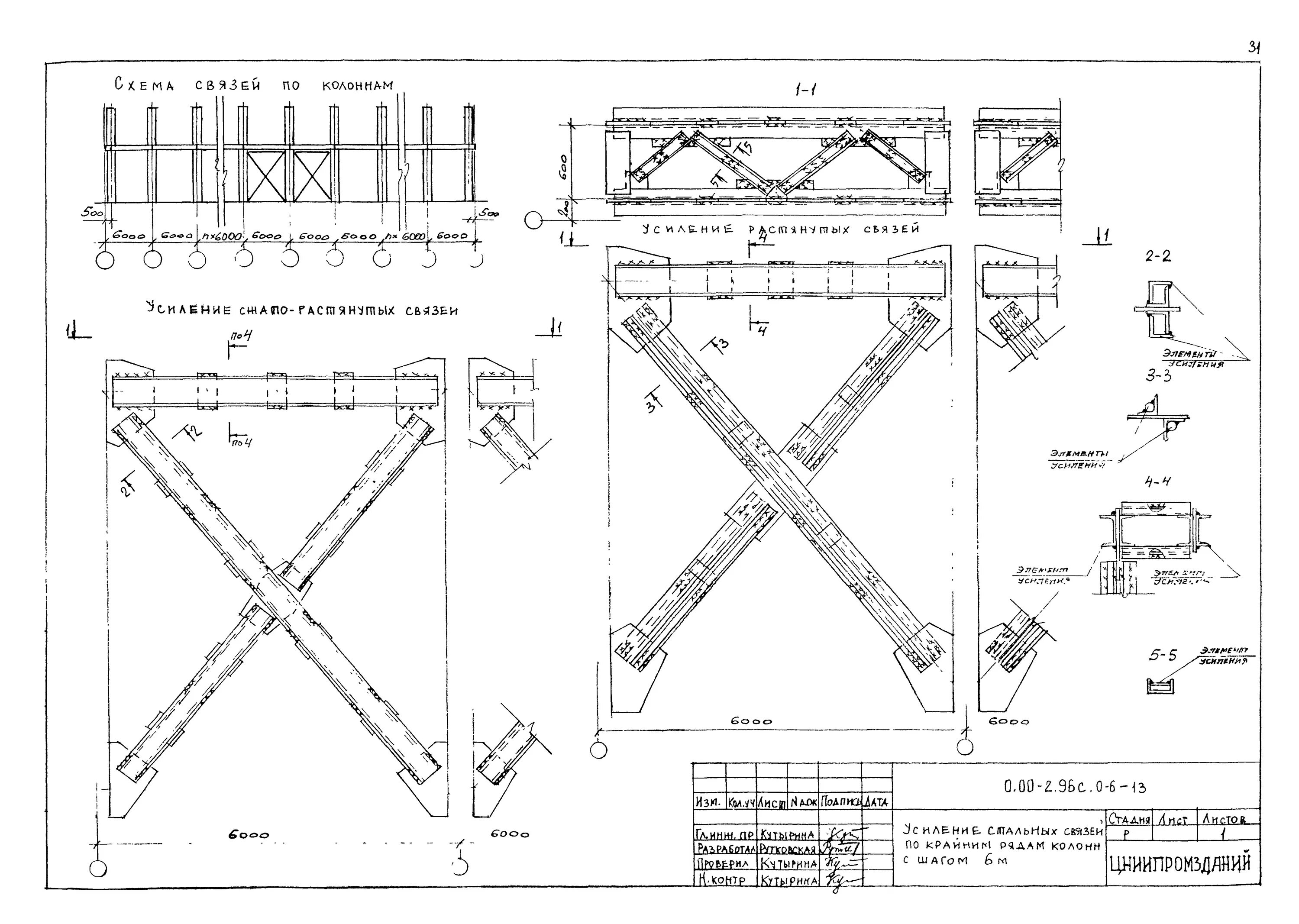
Функции вертикальных связей