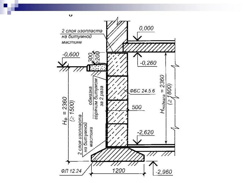
Фундамент здания с подвалом