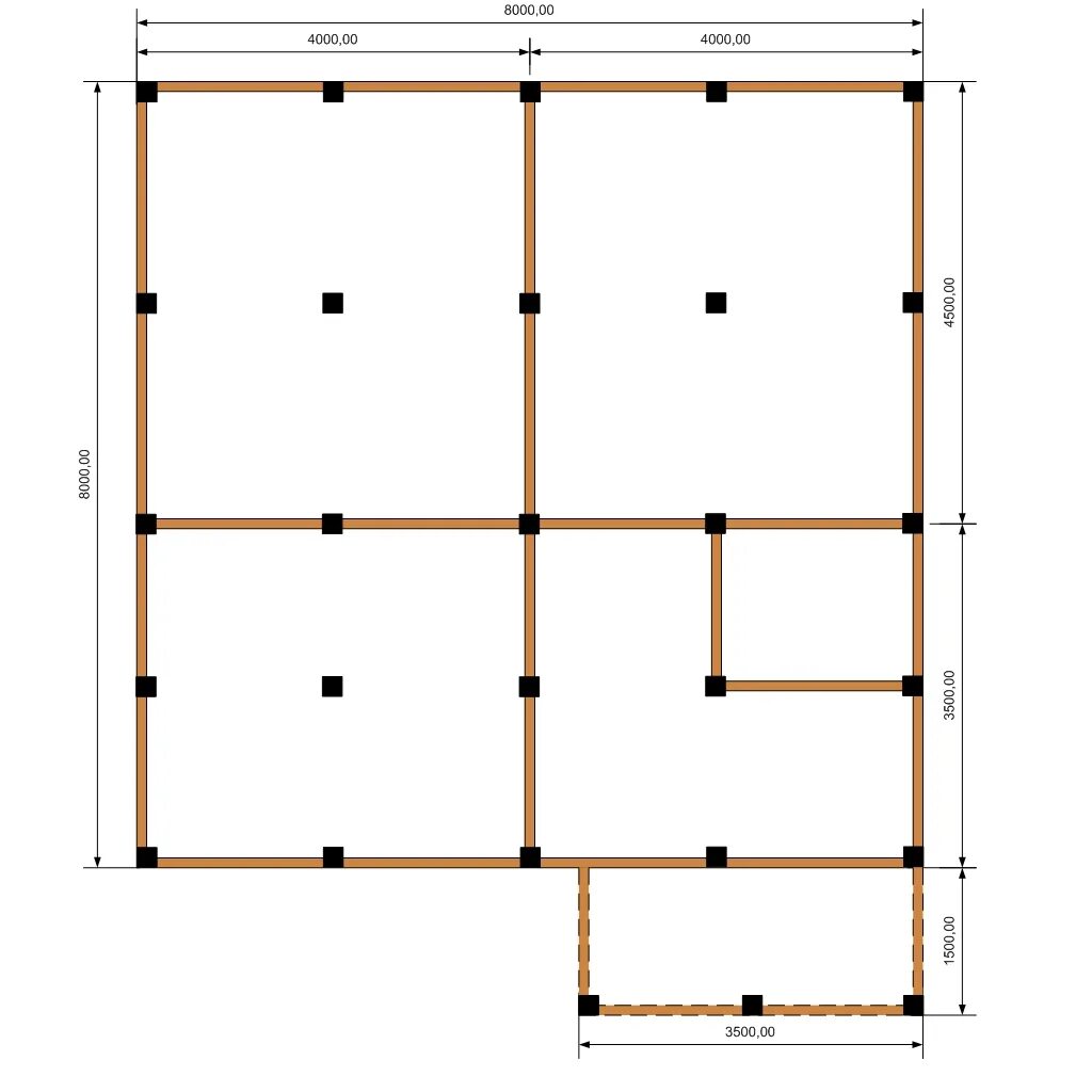
Фундамент дома 8х8