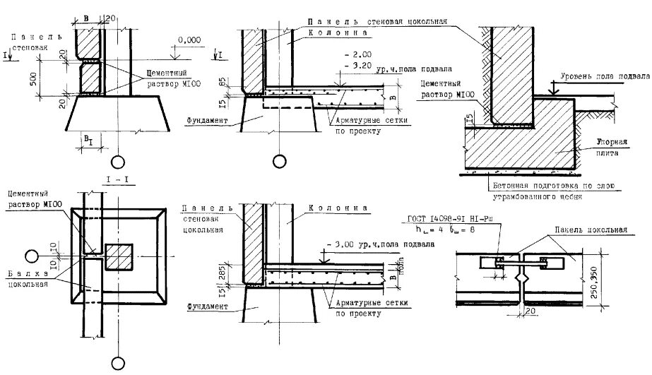
Фундамент для сэндвич панелей