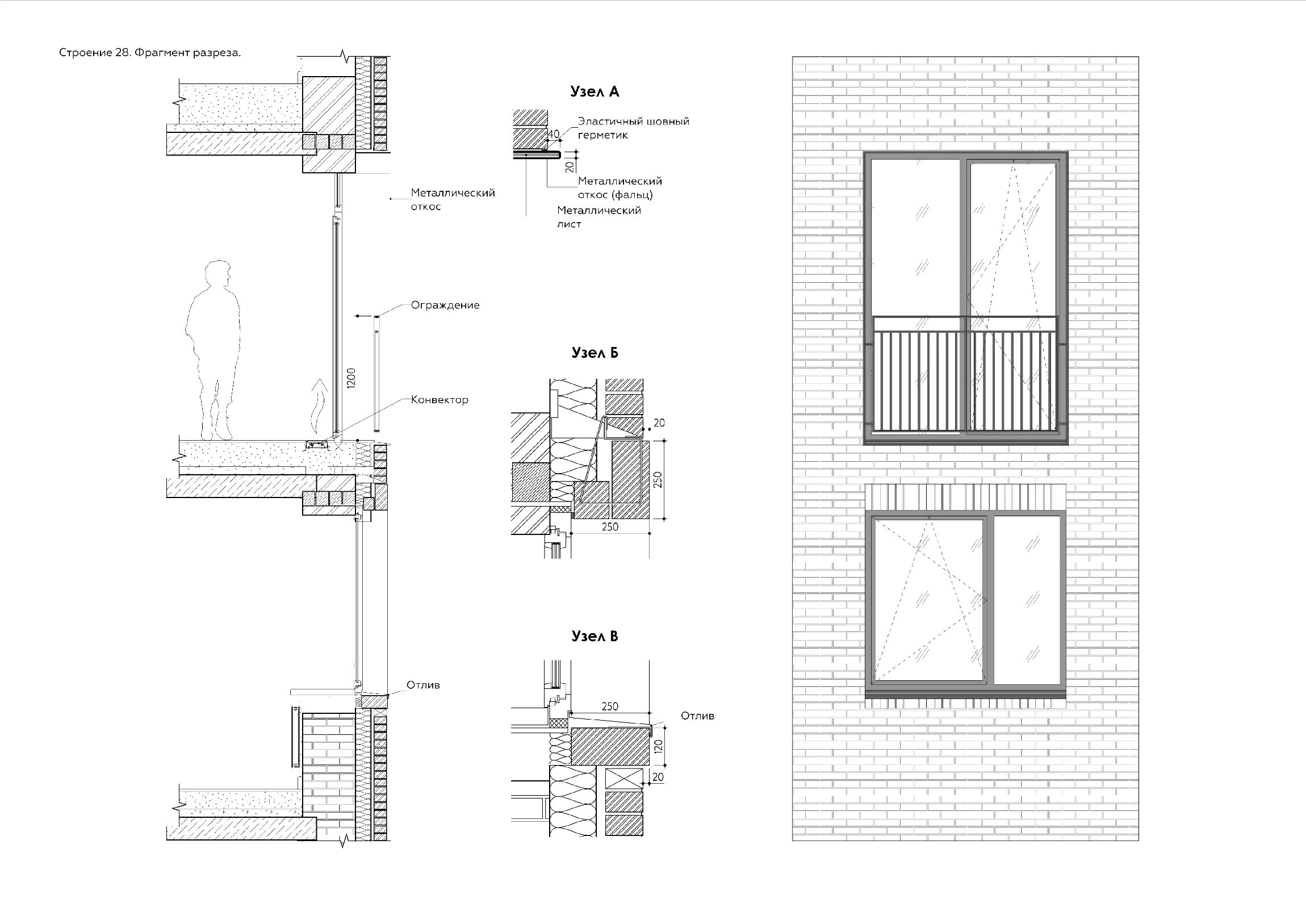
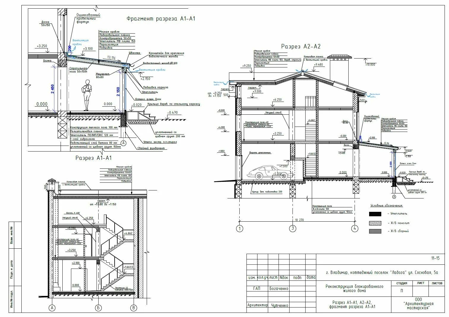
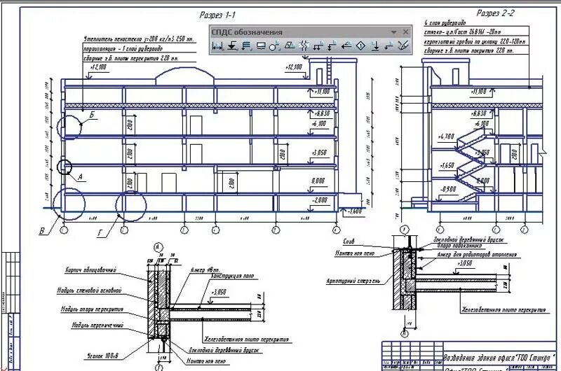
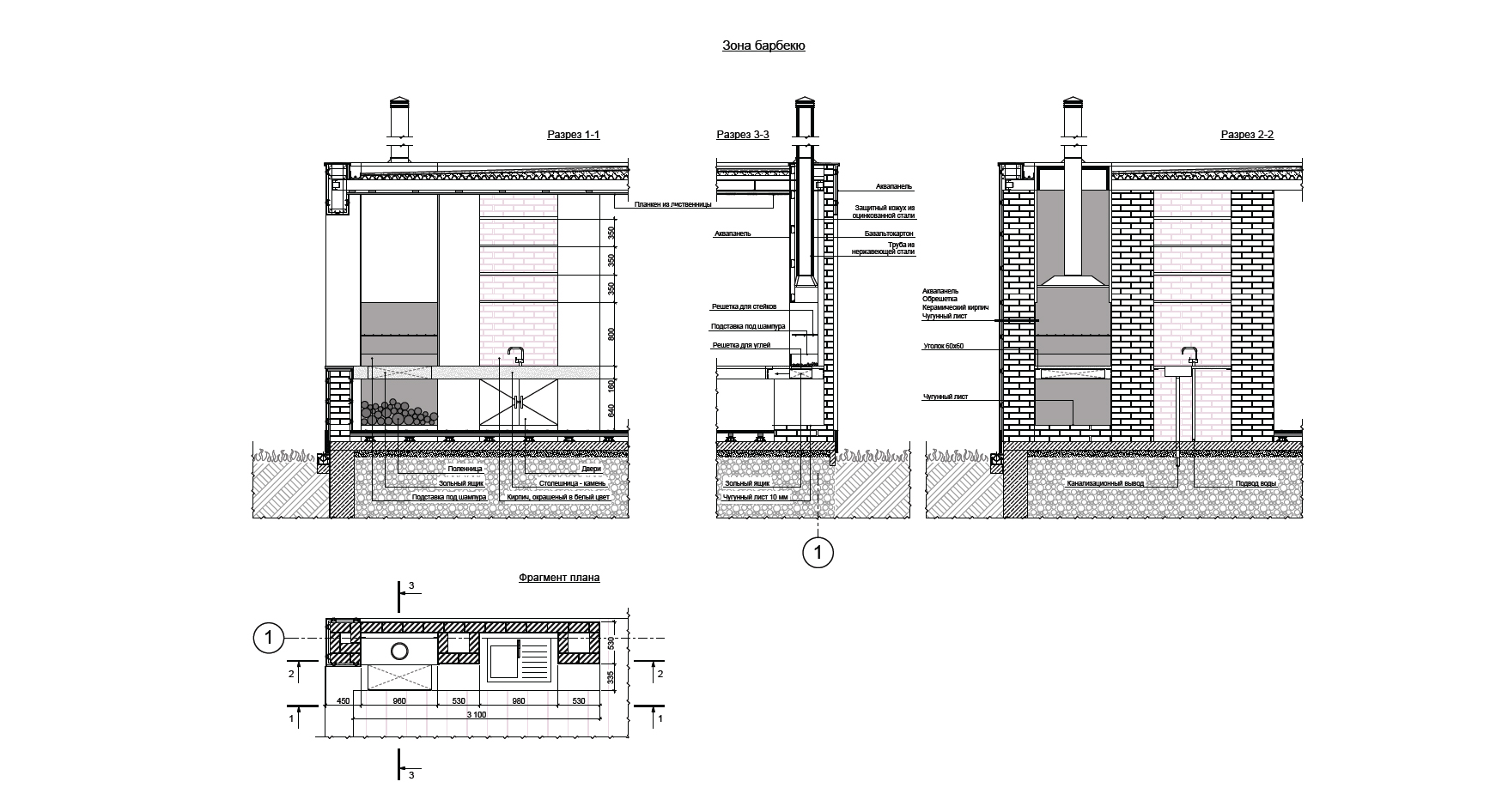
Фрагмент разреза