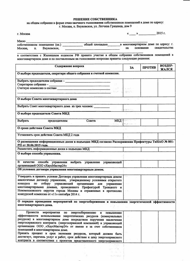
Форма решения собственников многоквартирного дома