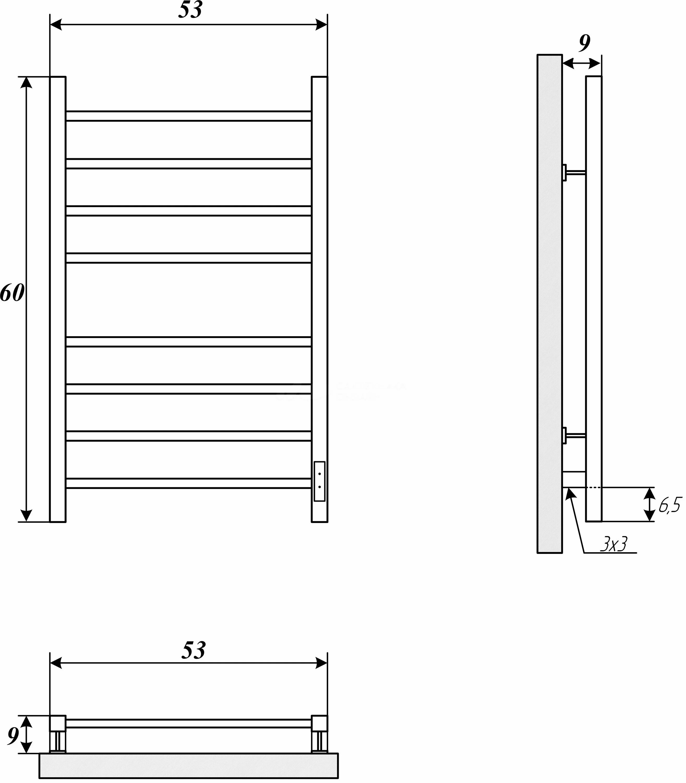
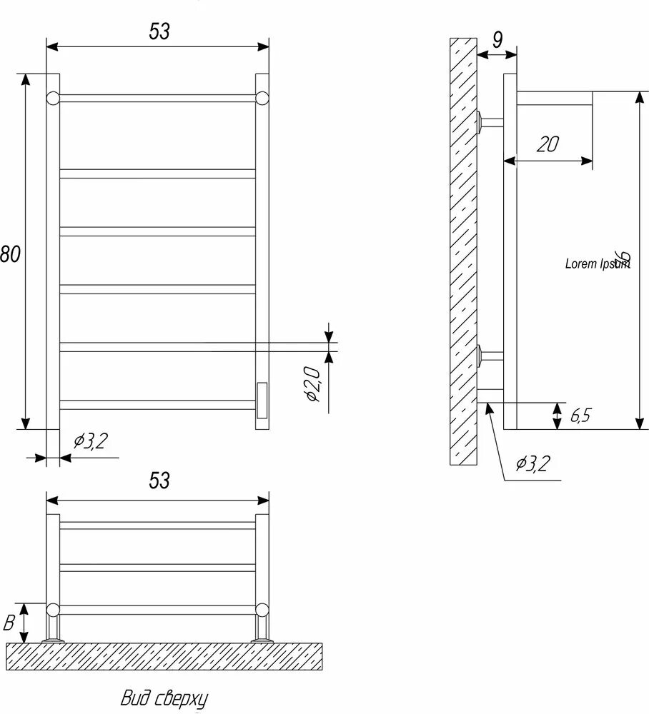
Fj neo 80 50