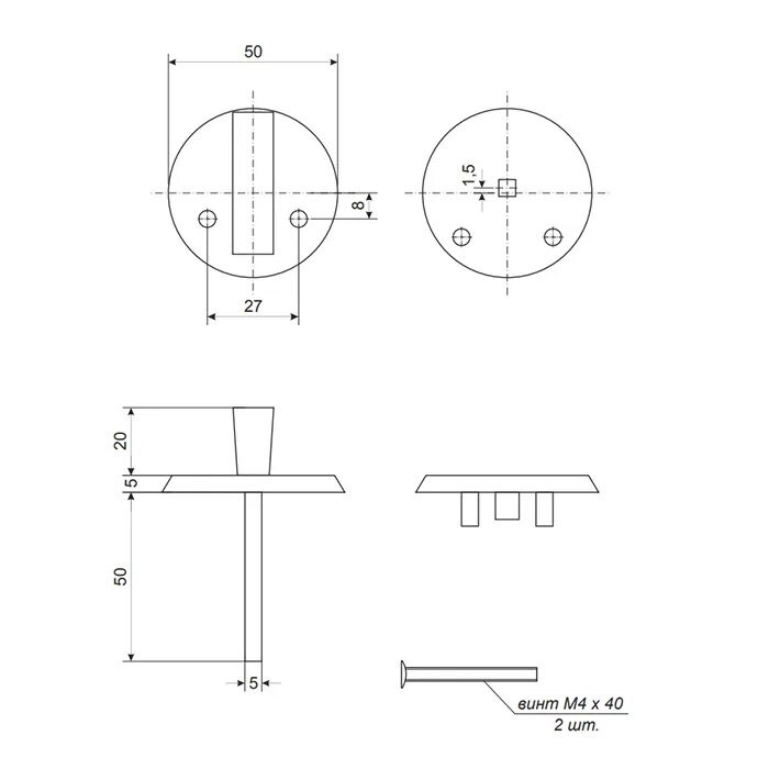
Фиксатор wc apecs