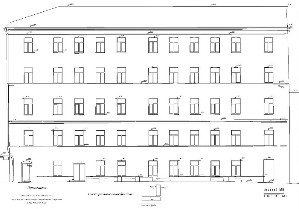
Фасад здания схема